Москва, ул Малая Пироговская, д 16
Пн-пт с 09:00 до 21:00, Сб-вс с 11:00 до 18:00

Аренда Торговое помещение 489 м² ID: J11845

Москва, Юго-западный, бульвар Адмирала Ушакова, д.5

Улица Скобелевская Бутовская 2 мин.
Площадь 489 м²
Этаж 1 из 17
1 550 000 / месяц
3 169 /м²
Ситкин Артем

Ситкин Артем
Специалист по недвижимости

+7(916)616-7663

+7(495)797-7074

sitkin@chaseestate.ru
QR
Ссылка на объект

Описание

В аренду предлагается торговое помещение, расположенное на 1-ом этаже в пристройке к жилому дому напротив ст. метро Улица Скобелевская (в 1 минуте ходьбы).
Первая линия домов. Район плотной жилой застройки.
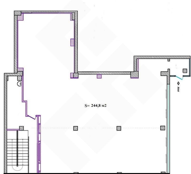
Площадь 489,04 м2 (244,8 м2 – 1 этаж, 244,24 м2 - цоколь)
Два отдельных входа (один - с фасада, второй - со стороны двора), витринное остекление.
Интенсивный трафик, отлично просматривается с дороги, с легкого метро.
Предыдущий арендатор - магазин "Башмаг".
Высота потолков 2,9 м – 1 этаж, 2,6 м – цоколь.
ХВС, ГВС, отопление, канализация , электричество (1 этаж-15 кВт, 15 кВт -цоколь)
Помещения с отделкой, планировка - зальная.
Возможность размещения рекламной вывески на фасаде здания.
Рядом Аптека, Газпромбанк, Сбербанк, кафе Кружка.

ID 59325

Характеристики

  • Тип недвижимости Коммерческая
  • Населенный пункт Москва
  • Адм.округ Юго-западный
  • Адрес бульвар Адмирала Ушакова, д.5
  • Станция метро Улица Скобелевская ( 2 мин.)
  • Стоимость заМесяц
  • Общая площадь 489 м²
  • Вид объекта Торговое помещение
  • Этаж 1
  • Этажность дома 17
  • Электричество нет
  • Газ нет
  • Интернет нет
  • Водоснабжение нет
  • Ремонт Типовой ремонт (Все кроме офиса)
  • Коммунальные услуги включены в стоимость да
  • Памятник нет
  • Высота потолков 3 м.
  • Планировка Открытая

Задать вопрос


Вас также может заинтересовать:

Здание 1113 м²
Москва, улица Минская, д.4
Западный
Филевский парк
1 800 000 / месяц
  • Вид объекта:Здание
  • Этаж:1
  • Этажность дома:2
6
Торговое помещение 313 м²
Москва, улица Дмитрия Ульянова, д.24/1
Юго-западный
Академическая
1 200 000 / месяц
  • Вид объекта:Торговое помещение
  • Этаж:1
  • Этажность дома:9
12
Офисное помещение 269 м²
Москва, переулок Малый Ивановский, д.7-9, к.1
Центральный, Басманный
Китай-город
1 221 300 / месяц
  • Вид объекта:Офисное помещение
  • Этаж:1
  • Этажность дома:3

Мы используем файлы cookie, чтобы обеспечить вам наилучший доступ к нашему веб-сайту

Скопировано