Москва, ул Малая Пироговская, д 16
Пн-пт с 09:00 до 21:00, Сб-вс с 11:00 до 18:00

Аренда Помещение свободного назначения 124 м² ID: J12181

Москва, Юго-восточный, Лефортово, улица Авиамоторная, д.12

Авиамоторная Калининская 3 мин.
Площадь 124 м²
Этаж 1 из 12
Сдача 2012 г.
800 000 / месяц
6 451 /м²
Кот Мария

Кот Мария
Специалист по недвижимости

+7(967)198-0892

+7(495)797-7074

kot@chaseestate.ru
QR
Ссылка на объект

Описание

В аренду предлагается помещение свободного назначения, находится на 1-й линии и расположено на 1-м этаже бизнес-центра Авиамоторная 12, рядом со ст. м. Авиамоторная, в 100 метрах от выхода из метро.
В 30-ти метрах от остановок общественного транспорта.
Сверхинтенсивный автомобильный и пешеходный поток.
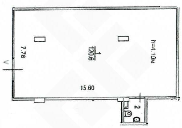
Общая площадь - 124,5 кв.м (1 этаж, один уровень)
Помещение зальной планировки с отделкой за выездом арендатора.
Отдельный вход.
Витринные окна, высокий рекламный потенциал.
Электрическая мощность - 15 кВт
Высота потолков 4,1 м
Есть вытяжка

Характеристики

  • Тип недвижимости Коммерческая
  • Населенный пункт Москва
  • Адм.округ Юго-восточный
  • Район Лефортово
  • Адрес улица Авиамоторная, д.12
  • Станция метро Авиамоторная ( 3 мин.)
  • Стоимость заМесяц
  • Общая площадь 124 м²
  • Вид объекта Помещение свободного назначения
  • Этаж 1
  • Этажность дома 12
  • Электричество нет
  • Газ нет
  • Интернет нет
  • Водоснабжение нет
  • Ремонт Типовой ремонт (Все кроме офиса)
  • Коммунальные услуги включены в стоимость да
  • Памятник нет
  • Высота потолков 4.1 м.
  • Мощность электричества 15 кВт
  • Планировка Смешанная
  • Год постройки 2012 г.

Задать вопрос


Вас также может заинтересовать:

Офисное помещение 193 м²
Москва, набережная Пресненская, д.12
Центральный
Выставочная
772 000 / месяц
  • Вид объекта:Офисное помещение
  • Этаж:72
  • Этажность дома:99
Офисное помещение 116 м²
Москва, набережная Пресненская, д.6, к.2
Центральный, Пресненский
Выставочная
750 000 / месяц
  • Вид объекта:Офисное помещение
  • Этаж:40
  • Этажность дома:60
18
Помещение свободного назначения 400 м²
Москва, улица Велозаводская, д.6
Южный, Даниловский
Автозаводская
900 000 / месяц
  • Вид объекта:Помещение свободного назначения
  • Этаж:1
  • Этажность дома:6

Мы используем файлы cookie, чтобы обеспечить вам наилучший доступ к нашему веб-сайту

Скопировано