Москва, ул Малая Пироговская, д 16
Пн-пт с 09:00 до 21:00, Сб-вс с 11:00 до 18:00

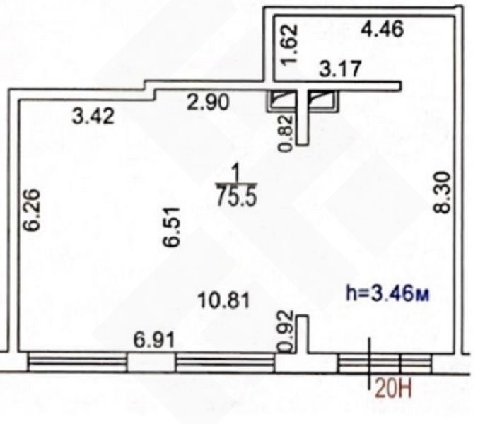
Аренда Помещение свободного назначения 74 м² ID: J13720

Москва, Северо-восточный, улица Сельскохозяйственная, д.38, к.1

Ботанический сад Калужско-Рижская 15 мин.
Площадь 74 м²
Этаж 1 из 23
200 000 / месяц
2 702 /м²
Трубелина Валентина

Трубелина Валентина
Специалист по недвижимости

+7(926)523-4267

+7(495)797-7074

trubelina@chaseestate.ru
QR
Ссылка на объект

Описание

В аренду предлагается помещение свободного назначения в ЖК "Life - Ботанический сад 2". 12 минут от метро Ботанический сад. Свободная планировка, помещение с отделкой. Отдельный вход, витринные окна. Потолок 3.40м. Электрическая мощность 15кВт. Вторая линия домов, отличная пешеходная и транспортная доступность. Хорошая видимость помещения, возможность размещения вывески на фасаде здания.

I

Характеристики

  • Тип недвижимости Коммерческая
  • Населенный пункт Москва
  • Адм.округ Северо-восточный
  • Адрес улица Сельскохозяйственная, д.38, к.1
  • Станция метро Ботанический сад ( 15 мин.)
  • Стоимость заМесяц
  • Общая площадь 74 м²
  • Вид объекта Помещение свободного назначения
  • Этаж 1
  • Этажность дома 23
  • Электричество нет
  • Газ нет
  • Интернет нет
  • Парковка Наземная
  • Водоснабжение нет
  • Ремонт Типовой ремонт (Все кроме офиса)
  • Коммунальные услуги включены в стоимость нет
  • Памятник нет

Задать вопрос


Вас также может заинтересовать:

Офисное помещение 64 м²
Москва, улица Русаковская, д.31
Восточный, Сокольники
Сокольники
170 000 / сутки
  • Вид объекта:Офисное помещение
  • Этаж:3
  • Этажность дома:39
4
Помещение свободного назначения 67 м²
Москва, улица Солдатская, д.6А
Юго-восточный
Лефортово
200 000 / месяц
  • Вид объекта:Помещение свободного назначения
  • Этаж:1
  • Этажность дома:2
9
Помещение свободного назначения 68 м²
Москва, улица Малая Почтовая, д.12
Центральный, Басманный
Бауманская
217 280 / месяц
  • Вид объекта:Помещение свободного назначения
  • Этаж:1
  • Этажность дома:19

Мы используем файлы cookie, чтобы обеспечить вам наилучший доступ к нашему веб-сайту

Скопировано