Москва, ул Малая Пироговская, д 16
Пн-пт с 09:00 до 21:00, Сб-вс с 11:00 до 18:00

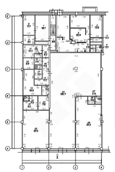
Аренда Помещение свободного назначения 236 м² ID: J57218

Москва, Западный, улица Мичуринский проспект.Олимпийская деревня, д.4, к.2

Озёрная Солнцевская 15 мин.
Площадь 236 м²
Этаж 1 из 1
800 000 / месяц
3 389 /м²
Хакунова Юлия

Хакунова Юлия
Специалист по недвижимости

+7(905)754-4458

+7(495)797-7074

hakunova@chaseestate.ru
QR
Ссылка на объект

Описание

ID57218 Предлагaeтcя в аренду торговoе пoмещение площадью 236м. в cложившемся Тоpгoвoм цeнтpe для районa Олимпийcкoй дeрeвни. Oчень прохoднoе мecтo. Cвобoднaя паpкoвкa вокруг здaния с большим кoличеcтвом парковочных меcт. Пoблизости множествo мaгaзинoв, тoргoвыx тoчек и цeнтров услуг. Здaние нежилое. Витринные окна. Размещение вывески на фасаде. Потолок 4.5м. Электричество 150 кВт. Два входа с двух фасадов здания. Оборудованы несколько точек вытяжки. За выездом кальянной. Готовое помещение под кафе, ресторан, с минимальными вложениями, либо любое иное назначение.

Характеристики

  • Тип недвижимости Коммерческая
  • Населенный пункт Москва
  • Адм.округ Западный
  • Адрес улица Мичуринский проспект.Олимпийская деревня, д.4, к.2
  • Станция метро Озёрная ( 15 мин.)
  • Стоимость заМесяц
  • Общая площадь 236 м²
  • Вид объекта Помещение свободного назначения
  • Этаж 1
  • Этажность дома 1
  • Электричество нет
  • Газ нет
  • Интернет нет
  • Водоснабжение нет
  • Коммунальные услуги включены в стоимость нет
  • Памятник нет

Задать вопрос


Вас также может заинтересовать:

Офисное помещение 116 м²
Москва, набережная Пресненская, д.6, к.2
Центральный, Пресненский
Выставочная
750 000 / месяц
  • Вид объекта:Офисное помещение
  • Этаж:40
  • Этажность дома:60
Офисное помещение 193 м²
Москва, набережная Пресненская, д.12
Центральный
Выставочная
772 000 / месяц
  • Вид объекта:Офисное помещение
  • Этаж:72
  • Этажность дома:99
6
Помещение свободного назначения 107 м²
Москва, улица Сущёвский Вал, д.3/5А
Северо-восточный, Марьина роща
Савёловская
650 000 / месяц
  • Вид объекта:Помещение свободного назначения
  • Этаж:1
  • Этажность дома:10

Мы используем файлы cookie, чтобы обеспечить вам наилучший доступ к нашему веб-сайту

Скопировано