Москва, ул Малая Пироговская, д 16
Пн-пт с 09:00 до 21:00, Сб-вс с 11:00 до 18:00

Аренда Здание 1900 м² ID: J58610

Серпухов, улица 1-я Московская, д.42/8

Площадь 1900 м²
Этаж 1 из 3
800 000 / сутки
421 /м²
Хакунова Юлия

Хакунова Юлия
Специалист по недвижимости

+7(905)754-4458

+7(495)797-7074

hakunova@chaseestate.ru
QR
Ссылка на объект

Описание

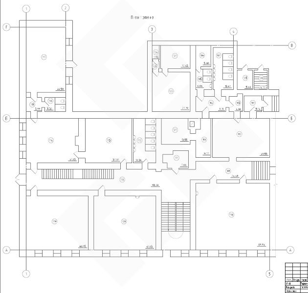
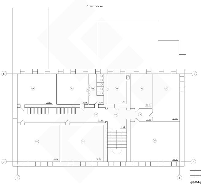
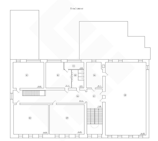
ID 58610 Предлагаю в аренду отдельно стоящее здание площадью 1900 м2 расположенное на первой линии домов по ул. 1я Московская, г. Серпухов, Московская область. Здание 3 этажа по 600 м2, несколько входов, смешанная планировка. Участок 30 сот. в собственности, есть возможность организовать парковку. Все коммуникации в наличии, элекктрическая мощность по запросу.

Характеристики

  • Тип недвижимости Коммерческая
  • Населенный пункт Серпухов
  • Адрес улица 1-я Московская, д.42/8
  • Стоимость заСутки
  • Общая площадь 1900 м²
  • Вид объекта Здание
  • Этаж 1
  • Этажность дома 3
  • Электричество нет
  • Газ нет
  • Интернет нет
  • Водоснабжение нет
  • Коммунальные услуги включены в стоимость нет
  • Памятник нет

Задать вопрос

Мы используем файлы cookie, чтобы обеспечить вам наилучший доступ к нашему веб-сайту

Скопировано