Москва, ул Малая Пироговская, д 16
Пн-пт с 09:00 до 21:00, Сб-вс с 11:00 до 18:00

Аренда Помещение свободного назначения 251 м² ID: J61674

Москва, Центральный, улица Мясницкая, д.14/2, к.1

Лубянка Сокольническая 7 мин.
Площадь 251 м²
Этаж 1 из 3
2 270 000 / месяц
9 043 /м²
Бархударян Армен

Бархударян Армен
Специалист по недвижимости

+7(905)756-7818

+7(495)797-7074

armen@chaseestate.ru
QR
Ссылка на объект

Описание

В аренду предлагается помещение свободного назначения, расположенное в административном здании на Мясницкой улице.
Первая линия домов. 3 минуты от метро Лубянка.
Сверхинтенсивный автомобильный и пешеходный поток.

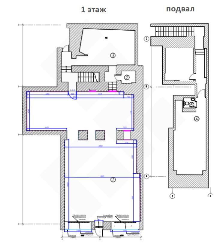
Общая площадь - 251 кв.м
1 этаж - 190,1 кв.м, подвал - 60,8 кв.м
В помещении необходим косметический ремонт, планировка - зальная.
Отдельный вход+зона погрузки/разгрузки.
Витринные окна, возможность размещения рекламы на фасаде здания.
Электрическая мощность - 162 кВт.

НДС включен в арендную ставку. Коммунальные и эксплуатационные расходы оплачиваются дополнительно.
Номер: 61674

Характеристики

  • Тип недвижимости Коммерческая
  • Населенный пункт Москва
  • Адм.округ Центральный
  • Адрес улица Мясницкая, д.14/2, к.1
  • Станция метро Лубянка ( 7 мин.)
  • Стоимость заМесяц
  • Общая площадь 251 м²
  • Вид объекта Помещение свободного назначения
  • Этаж 1
  • Этажность дома 3
  • Электричество нет
  • Газ нет
  • Интернет нет
  • Водоснабжение нет
  • Коммунальные услуги включены в стоимость нет
  • Памятник нет

Задать вопрос


Вас также может заинтересовать:

Здание 1113 м²
Москва, улица Минская, д.4
Западный
Филевский парк
1 800 000 / месяц
  • Вид объекта:Здание
  • Этаж:1
  • Этажность дома:2
6
Офисное помещение 1263 м²
Москва, улица Шаболовка, д.31
Центральный
Шаболовская
2 789 125 / месяц
  • Вид объекта:Офисное помещение
  • Этаж:1
  • Этажность дома:9
3
Помещение свободного назначения 189 м²
Москва, бульвар Гоголевский, д.3
Центральный, Хамовники
Кропоткинская
2 100 000 / месяц
  • Вид объекта:Помещение свободного назначения
  • Этаж:1
  • Этажность дома:3

Мы используем файлы cookie, чтобы обеспечить вам наилучший доступ к нашему веб-сайту

Скопировано