Москва, ул Малая Пироговская, д 16
Пн-пт с 09:00 до 21:00, Сб-вс с 11:00 до 18:00

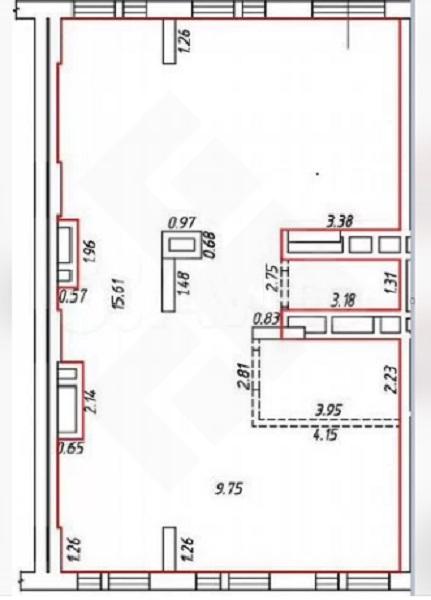
Аренда Помещение свободного назначения 140 м² ID: J61854

Москва, Северо-восточный, Останкинский, улица Олонецкая, д.6

Отрадное Серпуховско-Тимирязевская 18 мин.
Площадь 140 м²
Этаж 1 из 22
400 000 / месяц
2 857 /м²
Хакунова Юлия

Хакунова Юлия
Специалист по недвижимости

+7(905)754-4458

+7(495)797-7074

hakunova@chaseestate.ru
QR
Ссылка на объект

Описание

ID 61854 Предлагаю в аренду ПСН площадью 140 м2 расположенное на первом этаже многоэтажного жилого дома входящего в состав ЖК «Greеn Park». Первая линия. Помещение с отдельным входом, зальной планировки, с витринным остеклением, в бетоне. Высота потолков 5,7 м. Все коммуникации в наличии, электрическая мощность 40 кВт. УСН. ЖК GRЕЕN РАRК расположен в СВАО г. Москвы в пешей доступности от станций метро Ботанический сад и Отрадное. 8 корпусов на 5687 квартир. Заселен

Характеристики

  • Тип недвижимости Коммерческая
  • Населенный пункт Москва
  • Адм.округ Северо-восточный
  • Район Останкинский
  • Адрес улица Олонецкая, д.6
  • Станция метро Отрадное ( 18 мин.)
  • Стоимость заМесяц
  • Общая площадь 140 м²
  • Вид объекта Помещение свободного назначения
  • Этаж 1
  • Этажность дома 22
  • Электричество нет
  • Газ нет
  • Интернет нет
  • Водоснабжение нет
  • Коммунальные услуги включены в стоимость нет
  • Памятник нет

Задать вопрос


Вас также может заинтересовать:

Помещение свободного назначения 500 м²
Москва, шоссе Загородное, д.1
Южный, Донской
Тульская
450 000 / месяц
  • Вид объекта:Помещение свободного назначения
  • Этаж:1
Помещение свободного назначения 140 м²
Москва, улица Поляны, д.5А, к.1
Юго-западный
Улица Скобелевская
350 000 / сутки
  • Вид объекта:Помещение свободного назначения
  • Этаж:1
  • Этажность дома:33
Помещение свободного назначения 160 м²
Москва, улица Ивана Франко, д.38, к.1
Западный, Кунцево
Молодежная
330 000 / месяц
  • Вид объекта:Помещение свободного назначения
  • Этаж:1
  • Этажность дома:1

Мы используем файлы cookie, чтобы обеспечить вам наилучший доступ к нашему веб-сайту

Скопировано