Москва, ул Малая Пироговская, д 16
Пн-пт с 09:00 до 21:00, Сб-вс с 11:00 до 18:00

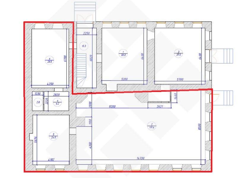
Аренда Помещение свободного назначения 187 м² ID: J61940

Москва, Центральный, Замоскворечье, улица Кожевническая, д.13, к.1

Павелецкая Замоскворецкая 8 мин.
Площадь 187 м²
Этаж 1 из 2
1 123 800 / месяц
6 009 /м²
Хакунова Юлия

Хакунова Юлия
Специалист по недвижимости

+7(905)754-4458

+7(495)797-7074

hakunova@chaseestate.ru
QR
Ссылка на объект

Описание

ID 61458 Предлагаю в аренду ПСН площадью 187 м2 расположенное на первом этаже особняка на ул. Кожевническая (усадьба Скворцовых, здание XIX века, объект культурного наследия). Помещение с отдельным входом с торца здания. Помещение требует косметического ремонта, замены сантехники, дверей. В связи со статусом объекта культурного наследия требуется разработка проекта планировки (приспособления) и согласование с ДКН. УСН

Характеристики

  • Тип недвижимости Коммерческая
  • Населенный пункт Москва
  • Адм.округ Центральный
  • Район Замоскворечье
  • Адрес улица Кожевническая, д.13, к.1
  • Станция метро Павелецкая ( 8 мин.)
  • Стоимость заМесяц
  • Общая площадь 187 м²
  • Вид объекта Помещение свободного назначения
  • Этаж 1
  • Этажность дома 2
  • Электричество нет
  • Газ нет
  • Интернет нет
  • Водоснабжение нет
  • Коммунальные услуги включены в стоимость нет
  • Памятник нет

Задать вопрос


Вас также может заинтересовать:

8
Помещение свободного назначения 182 м²
Москва, Москва, Новослободская улица, 24Ас2

1 390 000 / месяц
  • Вид объекта:Помещение свободного назначения
  • Этаж:1
  • Этажность дома:10
18
Помещение свободного назначения 400 м²
Москва, улица Велозаводская, д.6
Южный, Даниловский
Автозаводская
900 000 / месяц
  • Вид объекта:Помещение свободного назначения
  • Этаж:1
  • Этажность дома:6
6
Торговое помещение 313 м²
Москва, улица Дмитрия Ульянова, д.24/1
Юго-западный
Академическая
1 200 000 / месяц
  • Вид объекта:Торговое помещение
  • Этаж:1
  • Этажность дома:9

Мы используем файлы cookie, чтобы обеспечить вам наилучший доступ к нашему веб-сайту

Скопировано