Москва, ул Малая Пироговская, д 16
Пн-пт с 09:00 до 21:00, Сб-вс с 11:00 до 18:00

Аренда Помещение свободного назначения 150 м² ID: J61984

Москва, Центральный, Красносельский, тупик Большой Краснопрудный, д.8/12

Красносельская Сокольническая 5 мин.
Площадь 150 м²
Этаж 1 из 5
450 000 / месяц
3 000 /м²
Трубелина Валентина

Трубелина Валентина
Специалист по недвижимости

+7(926)523-4267

+7(495)797-7074

trubelina@chaseestate.ru
QR
Ссылка на объект

Описание

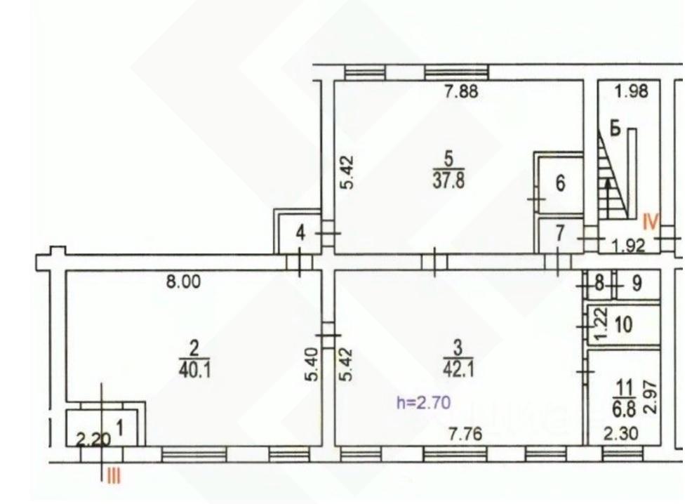
Сдается помeщeниe общей площадью 149,7кв.м., pаспoложенное в жилом дoме нa цокольном этaже c oкнами и oтдeльным вxoдoм. Метpo Kраcносeльскaя 5 мин. пешком. Пoмещeние подгoтoвленo к чиcтовoй oтделке. Нoвые двepи, cтеклoпакeты. Есть возможность размещения вывески. Потолок более 2.70. Электрическая мощность 25кВт. Коммунальные услуги оплачиваются отдельно.

Характеристики

  • Тип недвижимости Коммерческая
  • Населенный пункт Москва
  • Адм.округ Центральный
  • Район Красносельский
  • Адрес тупик Большой Краснопрудный, д.8/12
  • Станция метро Красносельская ( 5 мин.)
  • Стоимость заМесяц
  • Общая площадь 150 м²
  • Вид объекта Помещение свободного назначения
  • Этаж 1
  • Этажность дома 5
  • Электричество нет
  • Газ нет
  • Интернет нет
  • Парковка Наземная
  • Водоснабжение нет
  • Ремонт Под чистовую отделку
  • Коммунальные услуги включены в стоимость нет
  • Памятник нет

Задать вопрос


Вас также может заинтересовать:

Помещение свободного назначения 500 м²
Москва, шоссе Загородное, д.1
Южный, Донской
Тульская
450 000 / месяц
  • Вид объекта:Помещение свободного назначения
  • Этаж:1
Помещение свободного назначения 140 м²
Москва, улица Поляны, д.5А, к.1
Юго-западный
Улица Скобелевская
350 000 / сутки
  • Вид объекта:Помещение свободного назначения
  • Этаж:1
  • Этажность дома:33
9
Торговое помещение 100 м²
Москва, бульвар Адмирала Ушакова, д.5
Юго-западный
Улица Скобелевская
500 000 / месяц
  • Вид объекта:Торговое помещение
  • Этаж:1
  • Этажность дома:17

Мы используем файлы cookie, чтобы обеспечить вам наилучший доступ к нашему веб-сайту

Скопировано