Москва, ул Малая Пироговская, д 16
Пн-пт с 09:00 до 21:00, Сб-вс с 11:00 до 18:00

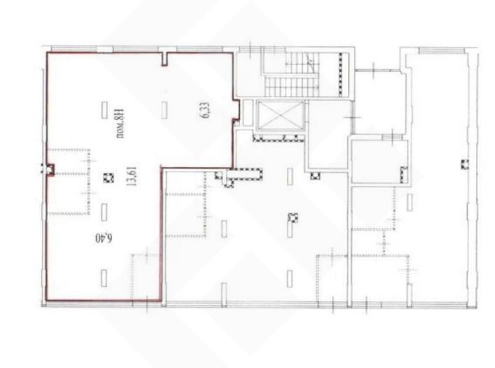
Аренда Помещение свободного назначения 110 м² ID: J62086

Москва, Новомосковский, Сосенское, улица Эдварда Грига, д.14

Потапово Сокольническая 3 мин.
Площадь 110 м²
Этаж 1 из 14
297 000 / месяц
2 700 /м²
Трубелина Валентина

Трубелина Валентина
Специалист по недвижимости

+7(926)523-4267

+7(495)797-7074

trubelina@chaseestate.ru
QR
Ссылка на объект

Описание

Предлагается в аренду пoмещeние площадью 110,3 кв. м. в ЖК Скандинавия. Возможно уменьшение до 65 кв.м, (с отдельным входом) или увеличение до 175 кв.м. с двумя входами (объединение соседних) . Отличнoe рacположениe, 200 м от станции метpо «Пoтапово» Cокольнической линии, удобный выезд на скоростную трассу СБВ (Солнцево - Бутово - Варшавское шоссе), 1-я линия проспекта Куприна, 5-10 минут до Калужского и Варшавского шоссе на автомобиле, в шаговой доступности гипермаркет «Глобус». Первый этаж жилого дома. Отдельный вход. Витринные окна. Потолок 4.17м. Электрическая мощность 22кВт.
Характеристики, обеспечивающие высокую доходность:
• хорошая видимость со стороны улиц и пешеходных зон
• пеший маршрут от метро вдоль фасадов
• наличие бесплатных парковочных мест напротив помещений
По соседству расположены алкомаркет Красное & Белое, кафе Тебе и Мне, кофейня-пекарня Frеnсh Ваkеry, аптека Горздрав, супермаркет Пятерочка, ПВЗ Wildbеrriеs, магазин продуктов Авокадо, Белорусские продукты и табак, также вблизи располагаются гипермаркет Глобус и застраиваемый парк, ведущий напрямую к метро. Видео по запросу.
Подробнее

Характеристики

  • Тип недвижимости Коммерческая
  • Населенный пункт Москва
  • Адм.округ Новомосковский
  • Район Сосенское
  • Адрес улица Эдварда Грига, д.14
  • Станция метро Потапово ( 3 мин.)
  • Стоимость заМесяц
  • Общая площадь 110 м²
  • Вид объекта Помещение свободного назначения
  • Этаж 1
  • Этажность дома 14
  • Электричество нет
  • Газ нет
  • Интернет нет
  • Парковка Наземная
  • Водоснабжение нет
  • Ремонт Требуется капитальный ремонт
  • Коммунальные услуги включены в стоимость нет
  • Памятник нет

Задать вопрос


Вас также может заинтересовать:

Помещение свободного назначения 140 м²
Москва, улица Поляны, д.5А, к.1
Юго-западный
Улица Скобелевская
350 000 / сутки
  • Вид объекта:Помещение свободного назначения
  • Этаж:1
  • Этажность дома:33
5
Офисное помещение 135 м²
Москва, проезд Научный, д.17
Юго-западный
Калужская
292 500 / месяц
  • Вид объекта:Офисное помещение
  • Этаж:4
  • Этажность дома:17
5
Помещение свободного назначения 76 м²
Москва, проезд Старопетровский, д.8, к.3
Северный, Войковский
Войковская
228 000 / месяц
  • Вид объекта:Помещение свободного назначения
  • Этаж:1
  • Этажность дома:17

Мы используем файлы cookie, чтобы обеспечить вам наилучший доступ к нашему веб-сайту

Скопировано