Москва, ул Малая Пироговская, д 16
Пн-пт с 09:00 до 21:00, Сб-вс с 11:00 до 18:00

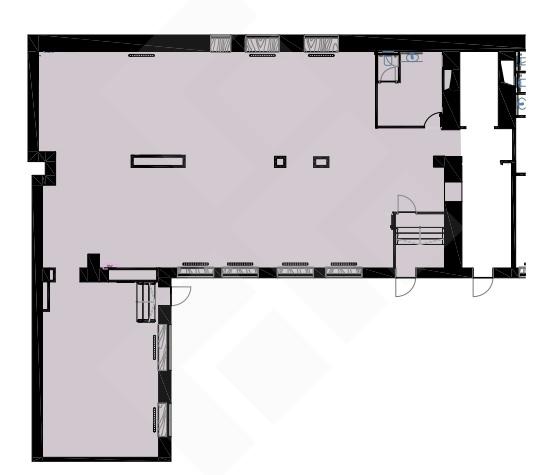
Аренда Помещение свободного назначения 270 м² ID: J62154

Москва, Центральный, Тверской, переулок Старопименовский, д.11, к.3

Маяковская Замоскворецкая 7 мин.
Площадь 270 м²
Этаж 1 из 2
1 126 250 / сутки
4 171 /м²
Трубелина Валентина

Трубелина Валентина
Специалист по недвижимости

+7(926)523-4267

+7(495)797-7074

trubelina@chaseestate.ru
QR
Ссылка на объект

Описание

Предлагается помещение оpenspase площадью 270,3кв.м. в отдельно стоящем здании, в пешей доступности от м.Маяковская. Отдельный вход со двора. Потолок около 3.50м. Электрическая мощность 60кВт. 2-х этажное здание класса «B» с отделкой и современными инженерными системами, обеспечивающие комфортную, безопасную и бесперебойную работу здания. В шаговой доступности от здания расположена всевозможная инфраструктура: рестораны, магазины, гостиницы, парки. В ставку включены эксплуатационные расходы. Коммунальные платежи оплачиваются дополнительно по факту потребления. 1м/м включено в стоимость. Имеется парковка за дополнительную плату.

Характеристики

  • Тип недвижимости Коммерческая
  • Населенный пункт Москва
  • Адм.округ Центральный
  • Район Тверской
  • Адрес переулок Старопименовский, д.11, к.3
  • Станция метро Маяковская ( 7 мин.)
  • Стоимость заСутки
  • Общая площадь 270 м²
  • Вид объекта Помещение свободного назначения
  • Этаж 1
  • Этажность дома 2
  • Электричество нет
  • Газ нет
  • Интернет нет
  • Водоснабжение нет
  • Ремонт Офисная отделка
  • Коммунальные услуги включены в стоимость нет
  • Памятник нет

Задать вопрос


Вас также может заинтересовать:

8
Помещение свободного назначения 182 м²
Москва, Москва, Новослободская улица, 24Ас2

1 390 000 / месяц
  • Вид объекта:Помещение свободного назначения
  • Этаж:1
  • Этажность дома:10
18
Помещение свободного назначения 400 м²
Москва, улица Велозаводская, д.6
Южный, Даниловский
Автозаводская
900 000 / месяц
  • Вид объекта:Помещение свободного назначения
  • Этаж:1
  • Этажность дома:6
5
Офисное помещение 505 м²
Москва, улица Самокатная, д.1, к.1
Юго-восточный
Курская
880 000 / месяц
  • Вид объекта:Офисное помещение
  • Этаж:3
  • Этажность дома:3

Мы используем файлы cookie, чтобы обеспечить вам наилучший доступ к нашему веб-сайту

Скопировано