Москва, ул Малая Пироговская, д 16
Пн-пт с 09:00 до 21:00, Сб-вс с 11:00 до 18:00

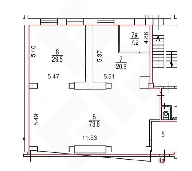
Аренда Помещение свободного назначения 140 м² ID: J62156

Москва, Южный, Орехово-Борисово Южное, улица Домодедовская, д.44

Домодедовская Замоскворецкая 13 мин.
Площадь 140 м²
Этаж 1 из 9
330 000 / месяц
2 357 /м²
Хакунова Юлия

Хакунова Юлия
Специалист по недвижимости

+7(905)754-4458

+7(495)797-7074

hakunova@chaseestate.ru
QR
Ссылка на объект

Описание

ID 62156 Предлагаю в субаренду ПСН площадью 140 м2 расположенное на первом этаже жилого дома по ул. Домодедовская. Первая линия. Помещение с отдельным входом с фасада и запасным со двора, зальной планировки, с витринным остеклением. Высота потолков 4,4 м. Все коммуникации в наличии, электрическая мощность 36 кВт. Отличные рeкламныe вoзмoжноcти. Окружение — густонаселенный жилой массив, 10 минут пешком от станции метро Домодедовская. Паpкoвка cтиxийнaя гoрoдcкая. Коммунальные платежи и обслуживание оплачиваются отдельно. Есть ограничения по получению алкогольной лицензии. Возможно заключение долгосрочного договора. Помещение освобождается 06.11.2025.

Характеристики

  • Тип недвижимости Коммерческая
  • Населенный пункт Москва
  • Адм.округ Южный
  • Район Орехово-Борисово Южное
  • Адрес улица Домодедовская, д.44
  • Станция метро Домодедовская ( 13 мин.)
  • Стоимость заМесяц
  • Общая площадь 140 м²
  • Вид объекта Помещение свободного назначения
  • Этаж 1
  • Этажность дома 9
  • Электричество нет
  • Газ нет
  • Интернет нет
  • Водоснабжение нет
  • Коммунальные услуги включены в стоимость нет
  • Памятник нет

Задать вопрос


Вас также может заинтересовать:

Помещение свободного назначения 160 м²
Москва, улица Ивана Франко, д.38, к.1
Западный, Кунцево
Молодежная
330 000 / месяц
  • Вид объекта:Помещение свободного назначения
  • Этаж:1
  • Этажность дома:1
Помещение свободного назначения 140 м²
Москва, улица Поляны, д.5А, к.1
Юго-западный
Улица Скобелевская
350 000 / сутки
  • Вид объекта:Помещение свободного назначения
  • Этаж:1
  • Этажность дома:33
9
Помещение свободного назначения 62 м²
Москва, шоссе Алтуфьевское, д.53, к.1
Северо-восточный, Алтуфьевский
Отрадное
250 000 / месяц
  • Вид объекта:Помещение свободного назначения
  • Этаж:1
  • Этажность дома:24

Мы используем файлы cookie, чтобы обеспечить вам наилучший доступ к нашему веб-сайту

Скопировано