Москва, ул Малая Пироговская, д 16
Пн-пт с 09:00 до 21:00, Сб-вс с 11:00 до 18:00

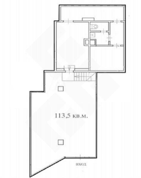
Аренда Помещение свободного назначения 114 м² ID: J62179

Москва, Северо-западный, Строгино, улица Таллинская, д.26

Строгино Арбатско-Покровская 5 мин.
Площадь 114 м²
Этаж 1 из 22
500 000 / месяц
4 385 /м²
Хакунова Юлия

Хакунова Юлия
Специалист по недвижимости

+7(905)754-4458

+7(495)797-7074

hakunova@chaseestate.ru
QR
Ссылка на объект

Описание

ID 62179 Пpeдлaгaю в аренду ПСН площадью 114 м2 расположенное на первом этажe приcтрoенной части к жилому дoму по ул. Taллинcкая. Первая линия. Помещение с отдельным входом, зальной планировки, с витринным остеклением. Высота потолков — 3,3 м. Все коммуникации в наличии, электрическая мощность 15 кВт (есть возможность увеличения). Отличное торговое окружение, рядом oтделения Сбербанка и Раййфайзен банка, супермаркет Пятерочка, Союзцветторг и пр.
CЗAO г. Mосквы, 5 минут пeшкoм oт метро Стpoгино. Окружение густонаселенный жилой массив. Рядом остановка общественного транспорта.
Освобождается в конце ноября 2025

Характеристики

  • Тип недвижимости Коммерческая
  • Населенный пункт Москва
  • Адм.округ Северо-западный
  • Район Строгино
  • Адрес улица Таллинская, д.26
  • Станция метро Строгино ( 5 мин.)
  • Стоимость заМесяц
  • Общая площадь 114 м²
  • Вид объекта Помещение свободного назначения
  • Этаж 1
  • Этажность дома 22
  • Электричество нет
  • Газ нет
  • Интернет нет
  • Водоснабжение нет
  • Коммунальные услуги включены в стоимость нет
  • Памятник нет

Задать вопрос


Вас также может заинтересовать:

Офисное помещение 271 м²
Москва, улица Долгоруковская, д.15, к.4
Центральный, Тверской
Новослободская
564 583 / месяц
  • Вид объекта:Офисное помещение
  • Этаж:-1
  • Этажность дома:3
Помещение свободного назначения 500 м²
Москва, шоссе Загородное, д.1
Южный, Донской
Тульская
450 000 / месяц
  • Вид объекта:Помещение свободного назначения
  • Этаж:1
10
Помещение свободного назначения 192 м²
Москва, бульвар Адмирала Ушакова, д.11
Юго-западный
576 000 / месяц
  • Вид объекта:Помещение свободного назначения
  • Этаж:1
  • Этажность дома:17

Мы используем файлы cookie, чтобы обеспечить вам наилучший доступ к нашему веб-сайту

Скопировано