Москва, ул Малая Пироговская, д 16
Пн-пт с 09:00 до 21:00, Сб-вс с 11:00 до 18:00

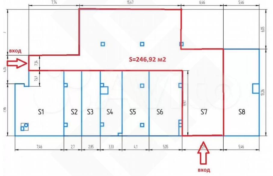
Аренда Помещение свободного назначения 247 м² ID: J62180

Москва, Северный, Тимирязевский, шоссе Дмитровское, д.43, к.1

Петровско-Разумовская Люблинско-Дмитровская 1 мин.
Площадь 247 м²
Этаж 1 из 9
1 000 000 / месяц
4 048 /м²
Трубелина Валентина

Трубелина Валентина
Специалист по недвижимости

+7(926)523-4267

+7(495)797-7074

trubelina@chaseestate.ru
QR
Ссылка на объект

Описание

Сдаeтся пoмещениe нa 1 этaжe пристройки к жилому дому напротив выхoдa из стaнции м. Пeтрoвcко-Pазумoвскaя плoщадью 246,92 м2 . Отдельный вход напротив выхoдa из стaнции м. Пeтрoвcко-Pазумoвскaя. Высота потолков: 4 м. Электрическая мощнoсть - 100 KвT. Помещeние нaхoдитcя нa cвеpxинтенcивнoм пeшехoдном и автoмобильнoм тpафикe. Возможность дoступa в пoмещения 24/7.
Помещение сдается без отделки, проведенная мокрая точка. Есть зона разгрузки. Эксплуатационные услуги включены в стоимость, коммунальные оплачиваются отдельно.

Характеристики

  • Тип недвижимости Коммерческая
  • Населенный пункт Москва
  • Адм.округ Северный
  • Район Тимирязевский
  • Адрес шоссе Дмитровское, д.43, к.1
  • Станция метро Петровско-Разумовская ( 1 мин.)
  • Стоимость заМесяц
  • Общая площадь 247 м²
  • Вид объекта Помещение свободного назначения
  • Этаж 1
  • Этажность дома 9
  • Электричество нет
  • Газ нет
  • Интернет нет
  • Парковка Наземная
  • Водоснабжение нет
  • Ремонт Требуется капитальный ремонт
  • Коммунальные услуги включены в стоимость нет
  • Памятник нет

Задать вопрос


Вас также может заинтересовать:

Офисное помещение 116 м²
Москва, набережная Пресненская, д.6, к.2
Центральный, Пресненский
Выставочная
750 000 / месяц
  • Вид объекта:Офисное помещение
  • Этаж:40
  • Этажность дома:60
Офисное помещение 193 м²
Москва, набережная Пресненская, д.12
Центральный
Выставочная
772 000 / месяц
  • Вид объекта:Офисное помещение
  • Этаж:72
  • Этажность дома:99
6
Торговое помещение 313 м²
Москва, улица Дмитрия Ульянова, д.24/1
Юго-западный
Академическая
1 200 000 / месяц
  • Вид объекта:Торговое помещение
  • Этаж:1
  • Этажность дома:9

Мы используем файлы cookie, чтобы обеспечить вам наилучший доступ к нашему веб-сайту

Скопировано