Москва, ул Малая Пироговская, д 16
Пн-пт с 09:00 до 21:00, Сб-вс с 11:00 до 18:00

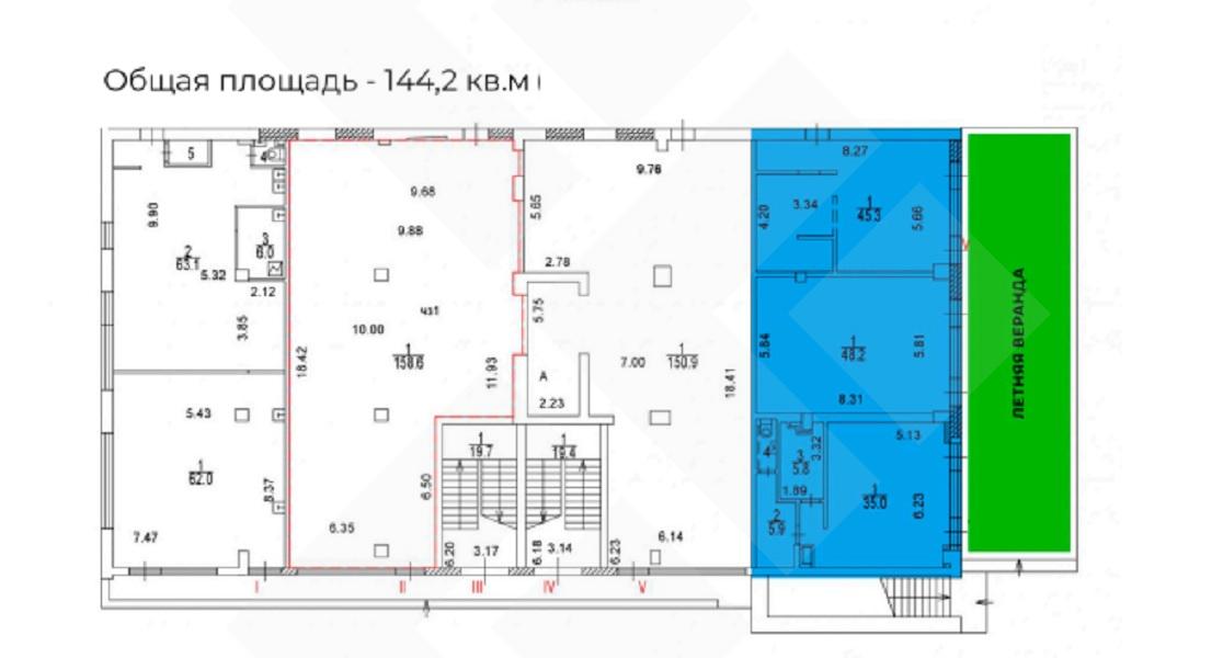
Аренда Помещение свободного назначения 144 м² ID: J62257

Москва, Центральный, Замоскворечье, улица Новокузнецкая, д.39

Павелецкая Кольцевая 2 мин.
Площадь 144 м²
Этаж 1 из 2
1 950 000 / месяц
13 541 /м²
Хакунова Юлия

Хакунова Юлия
Специалист по недвижимости

+7(905)754-4458

+7(495)797-7074

hakunova@chaseestate.ru
QR
Ссылка на объект

Описание

ID 62257 Предлагаю в аренду ПСН площадью 144 м2 расположенное на первом этаже административного здания по ул. Новокузнецкой. Первая линия домов. Несколько входных групп, зальной планировки, с витринным остеклением, высота потолков 3,5 м. Со двора есть зона разгрузки. Есть возможность организации веранды. Все коммуникации в наличии, электрическая мощность 85 кВт. Круглосуточный доступ. Меньше минуты пешком от метро Павелецкая. УСН, не включая НДС

Характеристики

  • Тип недвижимости Коммерческая
  • Населенный пункт Москва
  • Адм.округ Центральный
  • Район Замоскворечье
  • Адрес улица Новокузнецкая, д.39
  • Станция метро Павелецкая ( 2 мин.)
  • Стоимость заМесяц
  • Общая площадь 144 м²
  • Вид объекта Помещение свободного назначения
  • Этаж 1
  • Этажность дома 2
  • Электричество нет
  • Газ нет
  • Интернет нет
  • Водоснабжение нет
  • Коммунальные услуги включены в стоимость нет
  • Памятник нет

Задать вопрос


Вас также может заинтересовать:

Здание 1113 м²
Москва, улица Минская, д.4
Западный
Филевский парк
1 800 000 / месяц
  • Вид объекта:Здание
  • Этаж:1
  • Этажность дома:2
3
Помещение свободного назначения 189 м²
Москва, бульвар Гоголевский, д.3
Центральный, Хамовники
Кропоткинская
2 100 000 / месяц
  • Вид объекта:Помещение свободного назначения
  • Этаж:1
  • Этажность дома:3
9
Помещение свободного назначения 430 м²
Москва, Москва, ЖК Форивер, к6
Южный, Даниловский
Автозаводская
2 150 000 / месяц
  • Вид объекта:Помещение свободного назначения
  • Этаж:1
  • Этажность дома:19

Мы используем файлы cookie, чтобы обеспечить вам наилучший доступ к нашему веб-сайту

Скопировано