Москва, ул Малая Пироговская, д 16
Пн-пт с 09:00 до 21:00, Сб-вс с 11:00 до 18:00

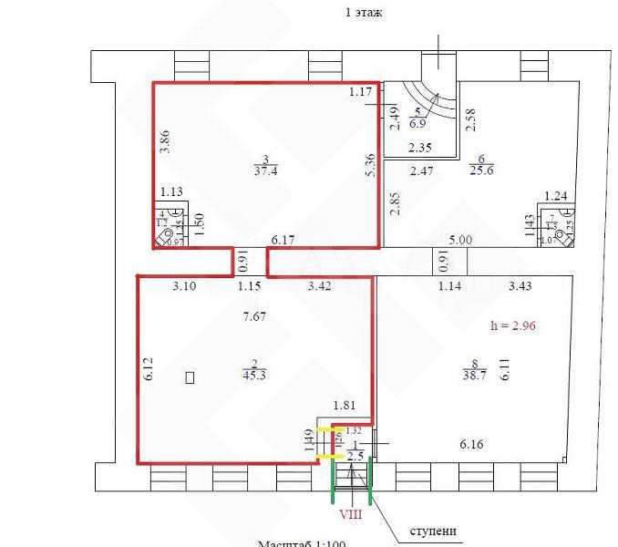
Аренда Помещение свободного назначения 74 м² ID: J62292

Москва, Центральный, Басманный, улица Макаренко, д.3, к.1

Чистые пруды Сокольническая 10 мин.
Площадь 74 м²
Этаж 1 из 6
450 000 / месяц
6 081 /м²
Хакунова Юлия

Хакунова Юлия
Специалист по недвижимости

+7(905)754-4458

+7(495)797-7074

hakunova@chaseestate.ru
QR
Ссылка на объект

Описание

ID 62292 Предлагается в аренду ПСН площадью 74 м2 расположенное на первом этаже пятиэтaжнoго жилого дома в 5 минутах пешком от станции метро Чистые пруды. Зальная планировка, ремонт за выездом арендатора, витринное остекление, высота потолков 3 м. Все коммуникации в наличии, электрическая мощность 30 кВт.

Характеристики

  • Тип недвижимости Коммерческая
  • Населенный пункт Москва
  • Адм.округ Центральный
  • Район Басманный
  • Адрес улица Макаренко, д.3, к.1
  • Станция метро Чистые пруды ( 10 мин.)
  • Стоимость заМесяц
  • Общая площадь 74 м²
  • Вид объекта Помещение свободного назначения
  • Этаж 1
  • Этажность дома 6
  • Электричество нет
  • Газ нет
  • Интернет нет
  • Водоснабжение нет
  • Коммунальные услуги включены в стоимость нет
  • Памятник нет

Задать вопрос


Вас также может заинтересовать:

Помещение свободного назначения 500 м²
Москва, шоссе Загородное, д.1
Южный, Донской
Тульская
450 000 / месяц
  • Вид объекта:Помещение свободного назначения
  • Этаж:1
Помещение свободного назначения 140 м²
Москва, улица Поляны, д.5А, к.1
Юго-западный
Улица Скобелевская
350 000 / сутки
  • Вид объекта:Помещение свободного назначения
  • Этаж:1
  • Этажность дома:33
9
Торговое помещение 100 м²
Москва, бульвар Адмирала Ушакова, д.5
Юго-западный
Улица Скобелевская
500 000 / месяц
  • Вид объекта:Торговое помещение
  • Этаж:1
  • Этажность дома:17

Мы используем файлы cookie, чтобы обеспечить вам наилучший доступ к нашему веб-сайту

Скопировано