Москва, ул Малая Пироговская, д 16
Пн-пт с 09:00 до 21:00, Сб-вс с 11:00 до 18:00

Аренда Помещение свободного назначения 165 м² ID: J62311

Москва, Северо-восточный, Алтуфьевский, шоссе Алтуфьевское, д.53, к.1

Отрадное Серпуховско-Тимирязевская 5 мин.
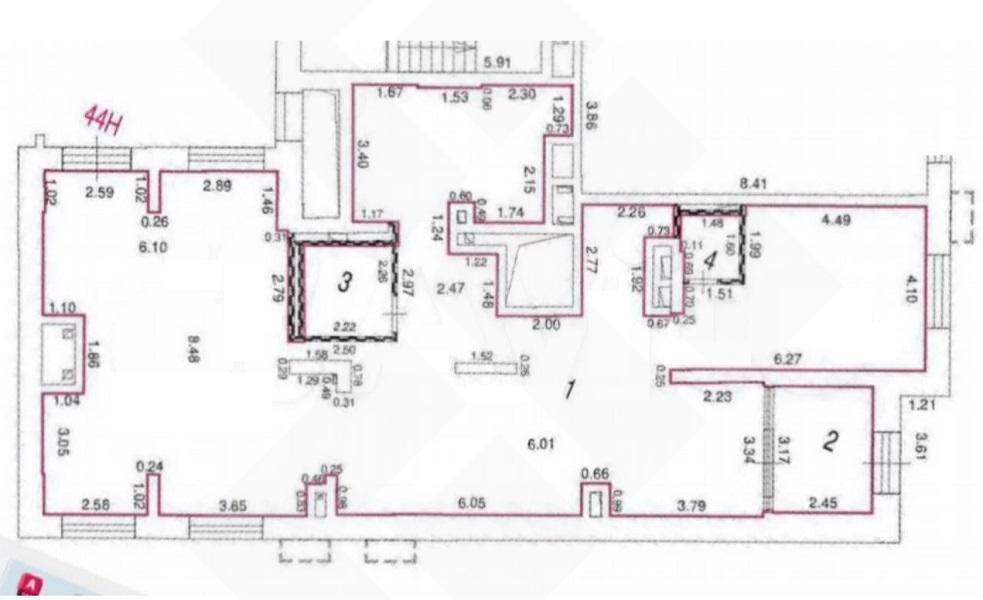
Площадь 165 м²
Этаж 1 из 24
660 000 / месяц
4 000 /м²
Хакунова Юлия

Хакунова Юлия
Специалист по недвижимости

+7(905)754-4458

+7(495)797-7074

hakunova@chaseestate.ru
QR
Ссылка на объект

Описание

ID 62311 Предлагаю в аренду ПСН площадью 165 м2 расположенное на первом этаже многоэтажного жилого дома входящего в состав ЖК «Алтуфьевское 53». Первая линия. Помещение угловое, на въезде в ЖК, отлично просматривается со всех сторон. Два входа, зальная планировка, витринное остекление. Высота потолков 3,5 м. Все коммуникации в наличии, электрическая мощность 32 кВт (есть возможность увеличения).

ЖК «Алтуфьевское 53» расположен на северо-востоке Москвы, на Алтуфьевском шоссе, недалеко от станции МЦД «Дегунино». 3470 сданных квартир, строится еще 980 квартир.

Характеристики

  • Тип недвижимости Коммерческая
  • Населенный пункт Москва
  • Адм.округ Северо-восточный
  • Район Алтуфьевский
  • Адрес шоссе Алтуфьевское, д.53, к.1
  • Станция метро Отрадное ( 5 мин.)
  • Стоимость заМесяц
  • Общая площадь 165 м²
  • Вид объекта Помещение свободного назначения
  • Этаж 1
  • Этажность дома 24
  • Электричество нет
  • Газ нет
  • Интернет нет
  • Водоснабжение нет
  • Коммунальные услуги включены в стоимость нет
  • Памятник нет

Задать вопрос


Вас также может заинтересовать:

Офисное помещение 271 м²
Москва, улица Долгоруковская, д.15, к.4
Центральный, Тверской
Новослободская
564 583 / месяц
  • Вид объекта:Офисное помещение
  • Этаж:-1
  • Этажность дома:3
Офисное помещение 193 м²
Москва, набережная Пресненская, д.12
Центральный
Выставочная
772 000 / месяц
  • Вид объекта:Офисное помещение
  • Этаж:72
  • Этажность дома:99
Офисное помещение 116 м²
Москва, набережная Пресненская, д.6, к.2
Центральный, Пресненский
Выставочная
750 000 / месяц
  • Вид объекта:Офисное помещение
  • Этаж:40
  • Этажность дома:60

Мы используем файлы cookie, чтобы обеспечить вам наилучший доступ к нашему веб-сайту

Скопировано