Москва, ул Малая Пироговская, д 16
Пн-пт с 09:00 до 21:00, Сб-вс с 11:00 до 18:00

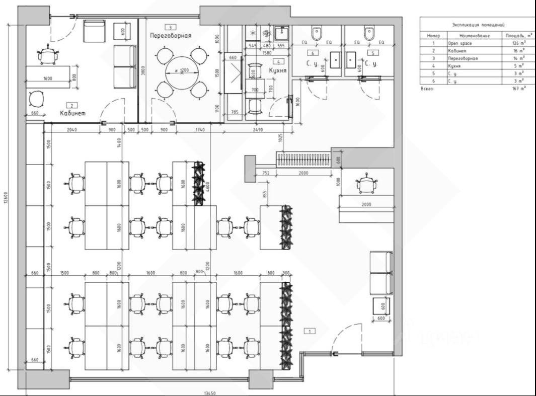
Аренда Офисное помещение 167 м² ID: J62317

Москва, Центральный, Хамовники, улица Трубецкая, д.12

Фрунзенская Сокольническая 7 мин.
Площадь 167 м²
Этаж 1 из 12
1 150 000 / месяц
6 886 /м²
Трубелина Валентина

Трубелина Валентина
Специалист по недвижимости

+7(926)523-4267

+7(495)797-7074

trubelina@chaseestate.ru
QR
Ссылка на объект

Описание

Предлагается в аренду новый офис площадью 166.6кв.м. в элитном ЖК "Садовые кварталы" — одном из самых престижных и архитектурно выразительных комплексов столицы. Помещение с современной дизайнерской отделкой расположено на первом этаже и полностью готово к въезду. Отдельный вход. Интерьер выполнен в светлых тонах, продумана система вентиляции и кондиционирования, установлены панорамные окна в пол. Планировка включает просторную зону open space, два отдельных кабинета, кухню и два санузла. Высокие потолки 3.50м, качественные материалы отделки и элегантные детали подчеркивают статус объекта. Окружение комплекса — это благоустроенная территория парка, премиальные кафе и рестораны. Это место для бизнеса, который ценит престиж, эстетику и комфорт.

Характеристики

  • Тип недвижимости Коммерческая
  • Населенный пункт Москва
  • Адм.округ Центральный
  • Район Хамовники
  • Адрес улица Трубецкая, д.12
  • Станция метро Фрунзенская ( 7 мин.)
  • Стоимость заМесяц
  • Общая площадь 167 м²
  • Вид объекта Офисное помещение
  • Этаж 1
  • Этажность дома 12
  • Электричество нет
  • Газ нет
  • Интернет нет
  • Водоснабжение нет
  • Ремонт Офисная отделка
  • Коммунальные услуги включены в стоимость нет
  • Памятник нет

Задать вопрос


Вас также может заинтересовать:

12
Офисное помещение 269 м²
Москва, переулок Малый Ивановский, д.7-9, к.1
Центральный, Басманный
Китай-город
1 221 300 / месяц
  • Вид объекта:Офисное помещение
  • Этаж:1
  • Этажность дома:3
18
Помещение свободного назначения 400 м²
Москва, улица Велозаводская, д.6
Южный, Даниловский
Автозаводская
900 000 / месяц
  • Вид объекта:Помещение свободного назначения
  • Этаж:1
  • Этажность дома:6
6
Торговое помещение 313 м²
Москва, улица Дмитрия Ульянова, д.24/1
Юго-западный
Академическая
1 200 000 / месяц
  • Вид объекта:Торговое помещение
  • Этаж:1
  • Этажность дома:9

Мы используем файлы cookie, чтобы обеспечить вам наилучший доступ к нашему веб-сайту

Скопировано