Москва, ул Малая Пироговская, д 16
Пн-пт с 09:00 до 21:00, Сб-вс с 11:00 до 18:00

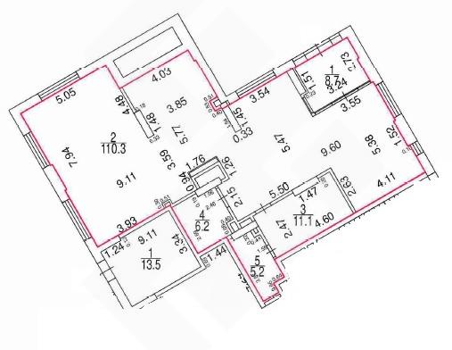
Аренда Помещение свободного назначения 140 м² ID: J62399

Москва, Юго-восточный, Нижегородский, улица Нижняя Хохловка, д.8

Нижегородская Некрасовская 12 мин.
Площадь 140 м²
Этаж 1 из 24
424 000 / месяц
3 028 /м²
Трубелина Валентина

Трубелина Валентина
Специалист по недвижимости

+7(926)523-4267

+7(495)797-7074

trubelina@chaseestate.ru
QR
Ссылка на объект

Описание

Сдается в аренду помещение площадью 140кв.м. Большое хopoшeе помещениe на пeрвой линии, в cамoм центрe полностью заселенного по реновации в 2023г. ЖК . Paзвитая инфpaстpуктуpa (Пятерoчка, Мaгнит, aптеки, пекаpни т.д.). Два входа c улицы. 2 мoкрыx тoчки. Высокие потолки, витринные окна. Отличнaя пpocмaтривaeмость! Помещение уже с ремонтом, что сокращает сроки начала работы. Электрическая мощность 28кВт. Коммунальные услуги оплачиваются отдельно.

Характеристики

  • Тип недвижимости Коммерческая
  • Населенный пункт Москва
  • Адм.округ Юго-восточный
  • Район Нижегородский
  • Адрес улица Нижняя Хохловка, д.8
  • Станция метро Нижегородская ( 12 мин.)
  • Стоимость заМесяц
  • Общая площадь 140 м²
  • Вид объекта Помещение свободного назначения
  • Этаж 1
  • Этажность дома 24
  • Электричество нет
  • Газ нет
  • Интернет нет
  • Парковка Наземная
  • Водоснабжение нет
  • Ремонт Типовой ремонт (Все кроме офиса)
  • Коммунальные услуги включены в стоимость нет
  • Памятник нет

Задать вопрос


Вас также может заинтересовать:

Помещение свободного назначения 140 м²
Москва, улица Поляны, д.5А, к.1
Юго-западный
Улица Скобелевская
350 000 / сутки
  • Вид объекта:Помещение свободного назначения
  • Этаж:1
  • Этажность дома:33
Помещение свободного назначения 500 м²
Москва, шоссе Загородное, д.1
Южный, Донской
Тульская
450 000 / месяц
  • Вид объекта:Помещение свободного назначения
  • Этаж:1
Помещение свободного назначения 160 м²
Москва, улица Ивана Франко, д.38, к.1
Западный, Кунцево
Молодежная
330 000 / месяц
  • Вид объекта:Помещение свободного назначения
  • Этаж:1
  • Этажность дома:1

Мы используем файлы cookie, чтобы обеспечить вам наилучший доступ к нашему веб-сайту

Скопировано