Москва, ул Малая Пироговская, д 16
Пн-пт с 09:00 до 21:00, Сб-вс с 11:00 до 18:00

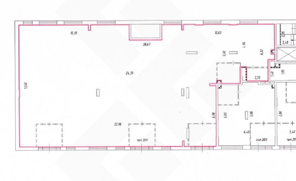
Аренда Помещение свободного назначения 331 м² ID: J62417

Москва, Новомосковский, Сосенское, проспект Прокшинский, д.5

Прокшино Сокольническая 10 мин.
Площадь 331 м²
Этаж 1 из 16
1 017 000 / месяц
3 072 /м²
Хакунова Юлия

Хакунова Юлия
Специалист по недвижимости

+7(905)754-4458

+7(495)797-7074

hakunova@chaseestate.ru
QR
Ссылка на объект

Описание

ID 62417 Предлагаю в аренду ПСН площадью 331 м2 расположенное в стилобатной части ЖК Прокшино. Помещение с тремя отдельными входами, правильной формы, зальной планировки, с витринным остеклением. В бетоне. Высота потолков 4,7-5,0 м. Все коммуникации в наличии, электрическая мощность 102 кВт, три отдельных вентиляционных шахты на крышу. 3 мокрые точки. На фасаде увеличенноe прострaнcтво для paзмещения вывeски. Есть зона разгрузки, подъезд грузового транспорта для разгрузки разрешен.
Помещение расположено на основном пешеходном трафике ведущем к метро.
Район активно заселяется и расстраивается до Испанских кварталов

Характеристики

  • Тип недвижимости Коммерческая
  • Населенный пункт Москва
  • Адм.округ Новомосковский
  • Район Сосенское
  • Адрес проспект Прокшинский, д.5
  • Станция метро Прокшино ( 10 мин.)
  • Стоимость заМесяц
  • Общая площадь 331 м²
  • Вид объекта Помещение свободного назначения
  • Этаж 1
  • Этажность дома 16
  • Электричество нет
  • Газ нет
  • Интернет нет
  • Водоснабжение нет
  • Коммунальные услуги включены в стоимость нет
  • Памятник нет

Задать вопрос


Вас также может заинтересовать:

Офисное помещение 193 м²
Москва, набережная Пресненская, д.12
Центральный
Выставочная
772 000 / месяц
  • Вид объекта:Офисное помещение
  • Этаж:72
  • Этажность дома:99
12
Офисное помещение 269 м²
Москва, переулок Малый Ивановский, д.7-9, к.1
Центральный, Басманный
Китай-город
1 221 300 / месяц
  • Вид объекта:Офисное помещение
  • Этаж:1
  • Этажность дома:3
18
Помещение свободного назначения 400 м²
Москва, улица Велозаводская, д.6
Южный, Даниловский
Автозаводская
900 000 / месяц
  • Вид объекта:Помещение свободного назначения
  • Этаж:1
  • Этажность дома:6

Мы используем файлы cookie, чтобы обеспечить вам наилучший доступ к нашему веб-сайту

Скопировано