Москва, ул Малая Пироговская, д 16
Пн-пт с 09:00 до 21:00, Сб-вс с 11:00 до 18:00

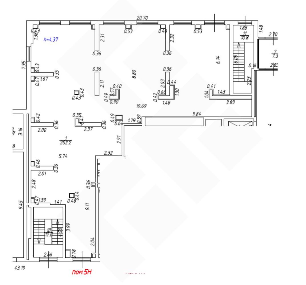
Аренда Помещение свободного назначения 202 м² ID: J62507

Москва, Южный, Чертаново Южное, улица Дорожная, д.46, к.1

Улица Академика Янгеля Серпуховско-Тимирязевская 15 мин.
Площадь 202 м²
Этаж 1 из 33
420 000 / месяц
2 079 /м²
Хакунова Юлия

Хакунова Юлия
Специалист по недвижимости

+7(905)754-4458

+7(495)797-7074

hakunova@chaseestate.ru
QR
Ссылка на объект

Описание

ID 62507 Предлагаю в аренду ПСН площадью 202 м2 расположенное на первом этаже многоэтажного жилого дома входящего в состав ЖК комфорт-класса Ютаново. Первая линия, рядом с въездом в паркинг. Помещение с двумя входами (с фасада и со двора), зальной планировки, в бетоне. Высота потолков 4,3 м. все коммуникации в наличии, электрическая мощность до 40 кВт. Окружение — густонаселенный жилой массив (количество проживающих жителей около 8000 человек). ЖК полностью сдан и заселен.

Характеристики

  • Тип недвижимости Коммерческая
  • Населенный пункт Москва
  • Адм.округ Южный
  • Район Чертаново Южное
  • Адрес улица Дорожная, д.46, к.1
  • Станция метро Улица Академика Янгеля ( 15 мин.)
  • Стоимость заМесяц
  • Общая площадь 202 м²
  • Вид объекта Помещение свободного назначения
  • Этаж 1
  • Этажность дома 33
  • Электричество нет
  • Газ нет
  • Интернет нет
  • Водоснабжение нет
  • Коммунальные услуги включены в стоимость нет
  • Памятник нет

Задать вопрос


Вас также может заинтересовать:

Помещение свободного назначения 500 м²
Москва, шоссе Загородное, д.1
Южный, Донской
Тульская
450 000 / месяц
  • Вид объекта:Помещение свободного назначения
  • Этаж:1
Помещение свободного назначения 140 м²
Москва, улица Поляны, д.5А, к.1
Юго-западный
Улица Скобелевская
350 000 / сутки
  • Вид объекта:Помещение свободного назначения
  • Этаж:1
  • Этажность дома:33
Помещение свободного назначения 160 м²
Москва, улица Ивана Франко, д.38, к.1
Западный, Кунцево
Молодежная
330 000 / месяц
  • Вид объекта:Помещение свободного назначения
  • Этаж:1
  • Этажность дома:1

Мы используем файлы cookie, чтобы обеспечить вам наилучший доступ к нашему веб-сайту

Скопировано