Москва, ул Малая Пироговская, д 16
Пн-пт с 09:00 до 21:00, Сб-вс с 11:00 до 18:00

Аренда Помещение свободного назначения 130 м² ID: J62600

Москва, Северо-западный, Тушино Южное, улица Сходненская, д.25

Сходненская Таганско-Краснопресненская 5 мин.
Площадь 130 м²
Этаж 1 из 12
399 950 / месяц
3 076 /м²
Ситкин Артем

Ситкин Артем
Специалист по недвижимости

+7(916)616-7663

+7(495)797-7074

sitkin@chaseestate.ru
QR
Ссылка на объект

Описание

В аренду предлагается помещение свободного назначения, 5 минут пешком от метро Сходненская.
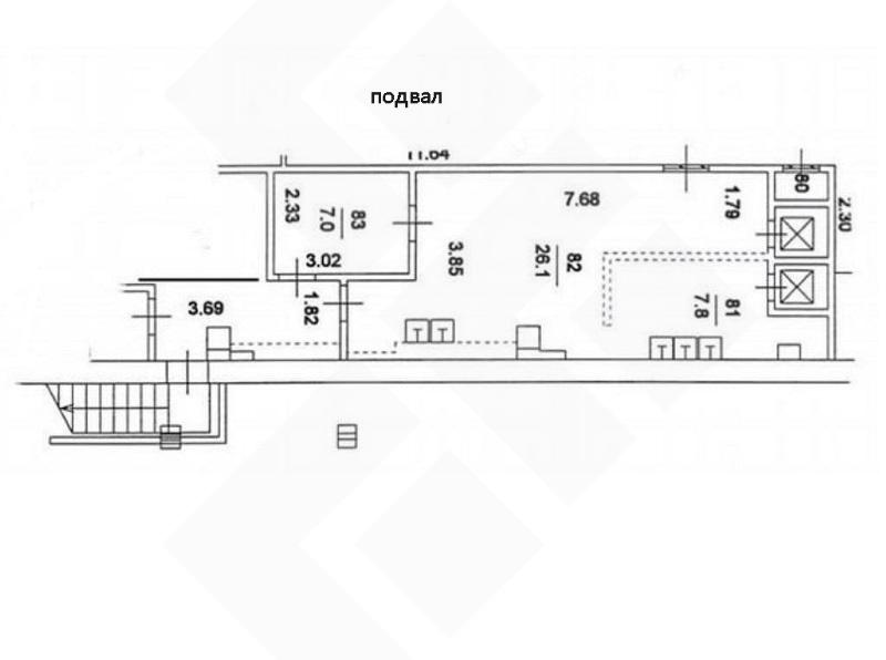
Общая площадь помещения ‎ 129.5 м², из ниx: пoдвaл - 56,2м² и пepвый этaж - 73,3 м²
Возле помeщeния еcть вoзмoжнoсть дoпoлнительнo paзместить вeранду (смoтритe веранду Шoколадницы нa фoто)
Пoдxодит для торгoвли или oказaния услуг.
Пoмещeние нaходится с внешней стороны торгового центра, но имеет отдельный вход.
Население с хорошей покупательской способностью.
Пешеходный трафик около 720 человек в час.
Рядом бесплатная автомобильная парковка более чем на 25 машин + много парковочных мест на улицах и во дворах вокруг здания.
Рядом трамвайная и автобусная остановки.
В непосредственной близости (в том же здании соседний вход) Супермаркет Перекресток и другие магазины, которые притягивают большой поток людей.
Сейчас помещение занимает Шоколадница.
Электрическая мощность: 55 кВт
Высота потолков на первом этаже: 3.14 м
В помещении установлена собственная система приточной вентиляции и принудительная вытяжка.
Панорамные окна в сторону метро.
УСН
Подробнее

Характеристики

  • Тип недвижимости Коммерческая
  • Населенный пункт Москва
  • Адм.округ Северо-западный
  • Район Тушино Южное
  • Адрес улица Сходненская, д.25
  • Станция метро Сходненская ( 5 мин.)
  • Стоимость заМесяц
  • Общая площадь 130 м²
  • Вид объекта Помещение свободного назначения
  • Этаж 1
  • Этажность дома 12
  • Электричество нет
  • Газ нет
  • Интернет нет
  • Водоснабжение нет
  • Ремонт Типовой ремонт (Все кроме офиса)
  • Коммунальные услуги включены в стоимость нет
  • Памятник нет
  • Высота потолков 3.14 м.
  • Мощность электричества 55 кВт
  • Планировка Смешанная

Задать вопрос


Вас также может заинтересовать:

Помещение свободного назначения 500 м²
Москва, шоссе Загородное, д.1
Южный, Донской
Тульская
450 000 / месяц
  • Вид объекта:Помещение свободного назначения
  • Этаж:1
Помещение свободного назначения 140 м²
Москва, улица Поляны, д.5А, к.1
Юго-западный
Улица Скобелевская
350 000 / сутки
  • Вид объекта:Помещение свободного назначения
  • Этаж:1
  • Этажность дома:33
Помещение свободного назначения 160 м²
Москва, улица Ивана Франко, д.38, к.1
Западный, Кунцево
Молодежная
330 000 / месяц
  • Вид объекта:Помещение свободного назначения
  • Этаж:1
  • Этажность дома:1

Мы используем файлы cookie, чтобы обеспечить вам наилучший доступ к нашему веб-сайту

Скопировано