Москва, ул Малая Пироговская, д 16
Пн-пт с 09:00 до 21:00, Сб-вс с 11:00 до 18:00

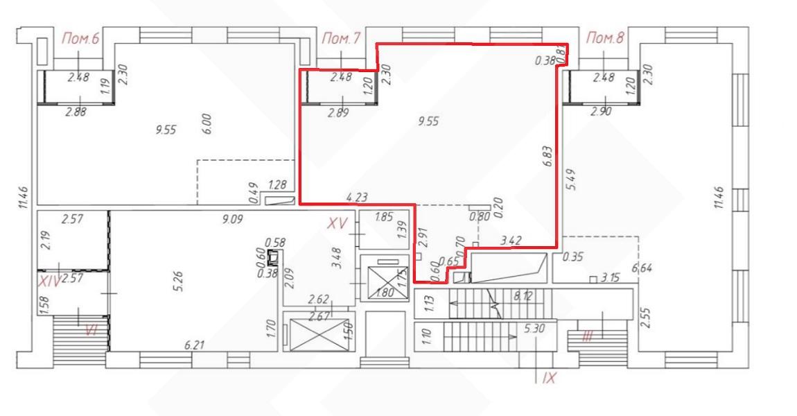
Аренда Помещение свободного назначения 64 м² ID: J62679

Москва, Северный, Дегунино Западное, проезд Ильменский, д.14, к.6

Селигерская Люблинско-Дмитровская 7 мин.
Площадь 64 м²
Этаж 1 из 12
400 000 / месяц
6 250 /м²
Хакунова Юлия

Хакунова Юлия
Специалист по недвижимости

+7(905)754-4458

+7(495)797-7074

hakunova@chaseestate.ru
QR
Ссылка на объект

Описание

ID 62679 Предлагаю в аренду ПСН площадью 64 м2 расположенное на первом этаже многоэтажного жилого дома входящего в состав ЖК Селигер сити. Помещение с отдельным входом, зальной планировки, с витринным остеклением. За выездом арендатора. Все коммуникации в наличии, электрическая мощность 15 кВт. Освобождается в феврале 2026 года
Жилой комплекс Селигер Сити расположен в районе Западное Дегунино САО г. Москвы, в двух минутах пешком от станции метро Селигерская. 11 корпусов разной этажности (от 7 до 45 этажей)

Характеристики

  • Тип недвижимости Коммерческая
  • Населенный пункт Москва
  • Адм.округ Северный
  • Район Дегунино Западное
  • Адрес проезд Ильменский, д.14, к.6
  • Станция метро Селигерская ( 7 мин.)
  • Стоимость заМесяц
  • Общая площадь 64 м²
  • Вид объекта Помещение свободного назначения
  • Этаж 1
  • Этажность дома 12
  • Электричество нет
  • Газ нет
  • Интернет нет
  • Водоснабжение нет
  • Коммунальные услуги включены в стоимость нет
  • Памятник нет

Задать вопрос


Вас также может заинтересовать:

Помещение свободного назначения 160 м²
Москва, улица Ивана Франко, д.38, к.1
Западный, Кунцево
Молодежная
330 000 / месяц
  • Вид объекта:Помещение свободного назначения
  • Этаж:1
  • Этажность дома:1
Помещение свободного назначения 500 м²
Москва, шоссе Загородное, д.1
Южный, Донской
Тульская
450 000 / месяц
  • Вид объекта:Помещение свободного назначения
  • Этаж:1
Помещение свободного назначения 140 м²
Москва, улица Поляны, д.5А, к.1
Юго-западный
Улица Скобелевская
350 000 / сутки
  • Вид объекта:Помещение свободного назначения
  • Этаж:1
  • Этажность дома:33

Мы используем файлы cookie, чтобы обеспечить вам наилучший доступ к нашему веб-сайту

Скопировано