Москва, ул Малая Пироговская, д 16
Пн-пт с 09:00 до 21:00, Сб-вс с 11:00 до 18:00

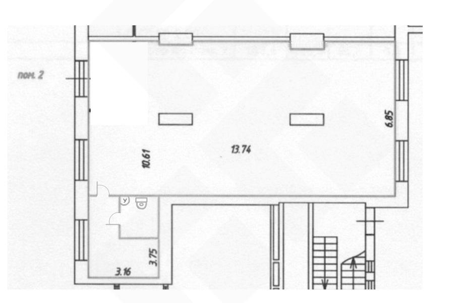
Продажа Торговое помещение 103 м² ID: J61954

Москва, Западный, улица Ярцевская, д.24, к.1

Молодежная Арбатско-Покровская 5 мин.
Площадь 103 м²
Этаж 1 из 25
Сдача 2017 г.
Хакунова Юлия

Хакунова Юлия
Специалист по недвижимости

+7(905)754-4458

+7(495)797-7074

hakunova@chaseestate.ru
QR
Ссылка на объект

Описание

ID 61954 Продажа готового арендного бизнеса. ПСН площадью 103 м2, расположенное на первом этаже ЖК "Ярцевская,24". Первая линия домов, две минуты от метро Молодежная. Помещение с отдельным входом, зальной планировки, большими витринами, отличные рекламные возможности. Все коммуникации в наличии, электричество 20 кВт. Сложившееся торговое окружение: Банк Открытие, Почта-Банк, Салон красоты, супермаркет Азбука вкуса, SimpleWine и т.п. Интенсивный пешеходный и автомобильный трафик. Напротив входа остановка общественного транспорта. Рядом со входом парковка. Арендатор Винлаб, мап 600 000 руб. Договор аренды на 3 года с 2025 года. Окупаемость 12 лет

Характеристики

  • Тип недвижимости Коммерческая
  • Населенный пункт Москва
  • Адм.округ Западный
  • Адрес улица Ярцевская, д.24, к.1
  • Станция метро Молодежная ( 5 мин.)
  • Общая площадь 103 м²
  • Вид объекта Торговое помещение
  • Этаж 1
  • Этажность дома 25
  • Электричество нет
  • Газ нет
  • Интернет нет
  • Водоснабжение нет
  • Коммунальные услуги включены в стоимость нет
  • Памятник нет
  • Год постройки 2017 г.

Задать вопрос


Вас также может заинтересовать:

9
Помещение свободного назначения 271 м²
Москва, улица Новослободская, д.36/1, к.1
Центральный
Менделеевская
85 000 000
  • Вид объекта:Помещение свободного назначения
  • Этаж:2
  • Этажность дома:3
4
Помещение свободного назначения 75 м²
Москва, набережная Серебряническая, д.7
Центральный
Китай-город
85 000 000
  • Вид объекта:Помещение свободного назначения
  • Этаж:1
  • Этажность дома:7
5
Здание 225 м²
Москва, проспект Пролетарский, д.6, к.2 стр 2
Южный, Москворечье-Сабурово
Каширская
98 000 000
  • Вид объекта:Здание
  • Этаж:1
  • Этажность дома:1

Мы используем файлы cookie, чтобы обеспечить вам наилучший доступ к нашему веб-сайту

Скопировано