Москва, ул Малая Пироговская, д 16
Пн-пт с 09:00 до 21:00, Сб-вс с 11:00 до 18:00

Премиальная отделка! ID: J38026

Москва, Западный, Филёвский парк, проезд Береговой, д.5, к.2

Фили Филевская 15 мин.
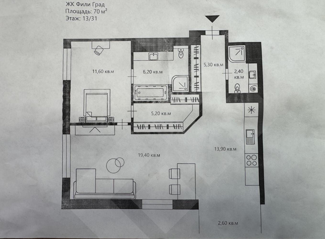
Комнаты 2
Площадь 70 м²
Жилая 40 м²
Кухня 15 м²
Этаж 13 из 21
Сдача 2015 г.
Мустафин Марат

Мустафин Марат
Специалист по недвижимости

+7(930)252-7777

mustafin@chaseestate.ru
QR
Ссылка на объект

Описание

Марат Мустафин

Предлагается 2-комн. квартира в элитном ЖК "Фили Град".

Мастер блок с большой гардеробной и санузлом, кухня-гостиная с зоной отдыха, панорамное остекление обеденной зоны, удобная система хранения, гостевой санузел.

В квартире выполнен дизайнерский ремонт с использованием дорогих и качественных материалов. Пол и мебель из массива карагача. Оборудована всей необходимой бытовой техникой высочайшего уровня ( SMEG, TESLA, MIELE, SIEMENS, IROBOT ).

Престижный ЖК и район, развитая инфраструктура - всё, что необходимо для комфортной жизни в ритме мегаполиса. Закрытая охраняемая территория комплекса, камеры видеонаблюдения, охрана. На территории построен детский сад, детская площадка, зона отдыха.

Есть кладовая на этаже (единственная) за отдельную стоимость.

Свободная продажа!
Звоните и я организую для Вас оперативный показ.

CHASE R.E.S/Участник AREA

Характеристики

  • Тип недвижимости Квартиры
  • Населенный пункт Москва
  • Адм.округ Западный
  • Район Филёвский парк
  • Адрес проезд Береговой, д.5, к.2
  • Станция метро Фили ( 15 мин.)
  • Количество комнат 2
  • Год постройки дома 2015 г.
  • Общая площадь 70 м²
  • Жилая площадь 40 м²
  • Площадь кухни 15 м²
  • Этаж 13
  • Этажей в доме 21
  • Ремонт дизайнерский
  • Состояние объекта отличное
  • Наличие мебели да
  • Мусоропровод да
  • Вид из окон во двор и на улицу
  • Высота потолков в метрах 3 м.
  • Тип дома Монолитный
  • Количество раздельных санузлов 1
  • Количество совмещенных санузлов 1
  • Количество грузовых лифтов 1
  • Количество пассажирских лифтов 2
  • Пентхаус нет
  • Есть терраса нет
  • Апартаменты нет
  • Количество лоджий 1
  • Жилой комплекс ЖК «Фили Град»
  • Паркинг Подземная
  • Тип санузла Совмещенный
  • Тип продажи Свободная продажа
  • Счетчики оплачиваются отдельно нет

Задать вопрос


Другие объекты застройщика ООО «Фили-Девелопмент»:

1
3-к.квартира, 86 м², 8/21 эт.
Москва, проезд Береговой, д.5, к.3
Западный
Фили
45 000 000
  • Общая площадь:86 м²
  • Жилая площадь:50 м²
  • Площадь кухни:20 м²
  • Этаж:8
12
3-к.квартира, 86 м², 8/21 эт.
Москва, проезд Береговой, д.5, к.3
Западный
Фили
39 000 000
  • Общая площадь:86 м²
  • Жилая площадь:50 м²
  • Площадь кухни:20 м²
  • Этаж:8

Вас также может заинтересовать:

2-к.квартира, 67 м², 19/24 эт.
Москва, улица Автозаводская, д.23Б, к.2
Южный, Даниловский
29 900 000
  • Общая площадь:67 м²
  • Жилая площадь:35.4 м²
  • Площадь кухни:10.4 м²
  • Этаж:19
Свободная планировка, 63.7 м², 23/34 эт.
Москва, улица Обручева, д.23, к.1
Юго-западный, Обручевский
Калужская
40 900 000
  • Общая площадь:63.7 м²
  • Жилая площадь:1 м²
  • Этаж:23
3-к.квартира, 53 м², 20/23 эт.
Москва, набережная Шелепихинская, д.40, к.2
Северо-западный
Хорошево
36 000 000
  • Общая площадь:53 м²
  • Жилая площадь:40 м²
  • Площадь кухни:12 м²
  • Этаж:20

Мы используем файлы cookie, чтобы обеспечить вам наилучший доступ к нашему веб-сайту

Скопировано