Москва, ул Малая Пироговская, д 16
Пн-пт с 09:00 до 21:00, Сб-вс с 11:00 до 18:00

Жизнь на Пресне! ID: J62485

Москва, Центральный, Пресненский, переулок Столярный, д.3, к.34

Улица 1905 года Таганско-Краснопресненская 7 мин.
Комнаты 3
Площадь 101 м²
Жилая 45 м²
Кухня 10 м²
Этаж 8 из 8
Сдача 2016 г.
Зигануров Дмитрий

Зигануров Дмитрий
Специалист по недвижимости

+7(925)840-5555

ziganurov@chaseestate.ru
QR
Ссылка на объект

Описание

Лот 62485 Дмитрий Зигануров
Эксклюзивно в CHASE.RES

Добрый день!

Мы предлагаем к продаже уникальный трёхуровневый лот, который кардинально изменит ваше представление о городском жилье. Это готовое решение для тех, кто ценит простор, приватность и нестандартный подход.

Эксклюзивный трёхуровневый апартамент с балконом.

Апартамент находится в перестроенном историческом здании на территории бывшей мебельной фабрики «Мюръ и Мерилизъ» — детища шотландских предпринимателей середины XIX века.
Стиль лофт немного брутальный, современный, открытый, с большим количеством металла, стекла, с кирпичной отделкой стен — был выбран ими совершенно осознанно.

Преимущества и планировка:
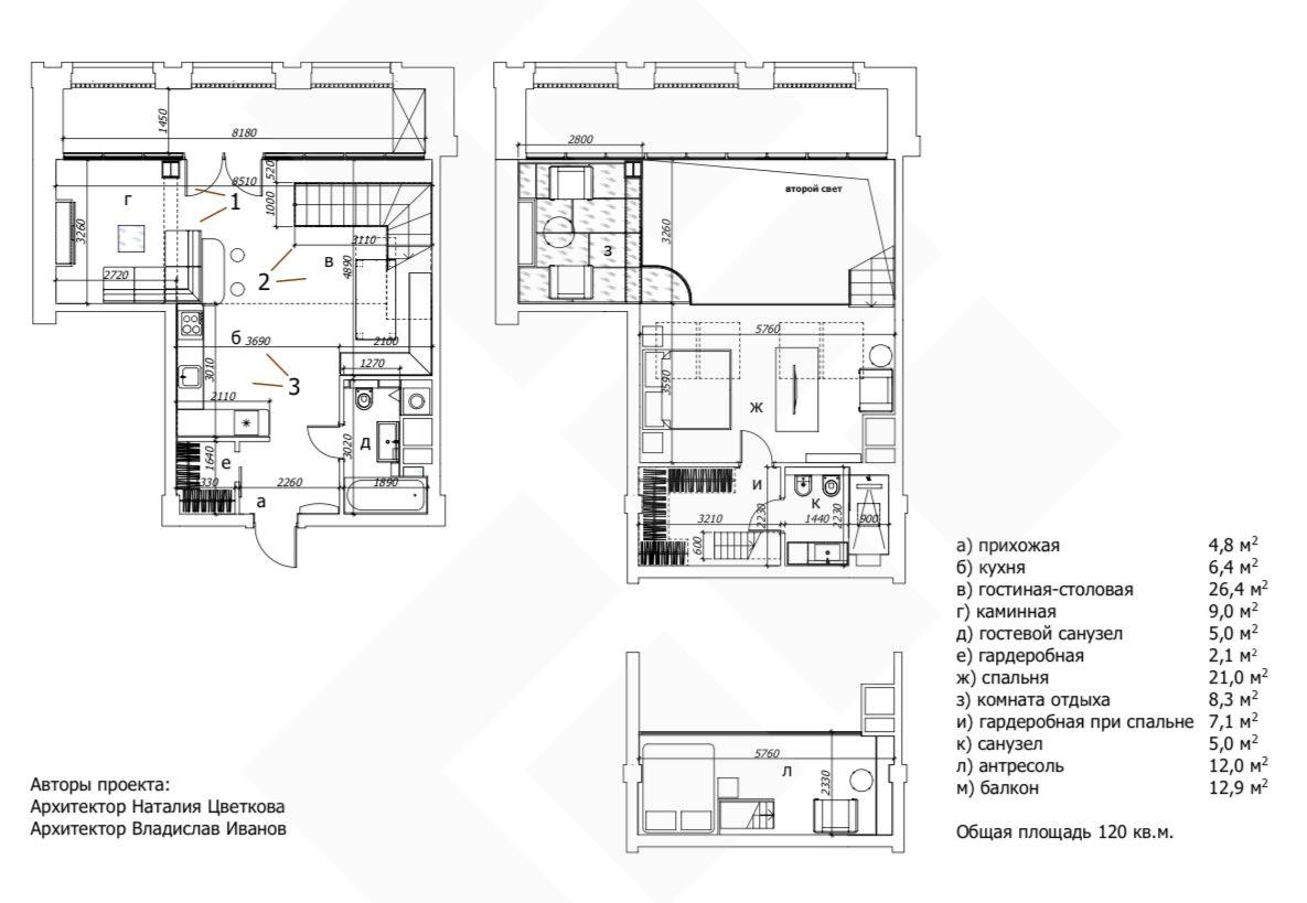
На первом уровне квартиры разместились открытая кухня с барной стойкой и столовой, гостиная со вторым светом и притягательной каминной зоной с естественным освещением через панорамное окно. А кроме того, гардеробная и гостевой санузел. Выход на огромный балкон 12м2.

Кухня, барная стойка выполнены на заказ по эскизам авторов проекта. Барные стулья Franky Velvet Grey, Eichholtz. Кухня, барная стойка, «Стильные кухни». Вся встраиваемая техника BOSСH. На полу—доска из массива дерева L’Antic Colonial (PORCELANOSA Grupo) и плитка Porcelanosa. Теплые полы, установлена японская система кондиционирования DAIKIN.

Как будто невесомая лестница из дерева и металла, ведущая на второй этаж, служит украшением гостиной, делая интерьер лёгким и современным. Лестница, ограждения, лавки у стола, «Студия лестниц Андрея Гостева». Люстры, LeHome Interiors.

На втором уровне, находится спальня, ванная комната, ещё одна гардеробная.

Архитекторы нарастили площадь второго уровня и продлили его площадкой со стеклянным полом, на которой организовали кабинет. Им также удалось устроить небольшую площадку на третьем уровне, куда ведёт лестница из гардеробной. Здесь расположили небольшую гостевую спальню. Отсюда открывается вид на панораму города и на всю квартиру. Квартира получилась гостеприимной и открытой, здесь буквально отовсюду, за исключением санузлов и гардеробных, открывается панорамный вид на центр Москвы.

Развитая инфраструктура Пресненского района: парки, школы, супермаркеты, все ключевые доминанты в шаговой доступности. Престижная локация для Вас и Вашей семьи.

Огороженная территория, видеонаблюдение, консьерж, охрана. Подземный и наземный паркинг.

Видео на руках. Подробности по телефону.
Подробнее

Характеристики

  • Тип недвижимости Квартиры
  • Населенный пункт Москва
  • Адм.округ Центральный
  • Район Пресненский
  • Адрес переулок Столярный, д.3, к.34
  • Станция метро Улица 1905 года ( 7 мин.)
  • Станция метро Краснопресненская ( 10 мин.)
  • Станция метро Баррикадная ( 12 мин.)
  • Количество комнат 3
  • Год постройки дома 2016 г.
  • Общая площадь 101 м²
  • Жилая площадь 45 м²
  • Площадь кухни 10 м²
  • Этаж 8
  • Этажей в доме 8
  • Тип балкона лоджия
  • Ремонт дизайнерский
  • Состояние объекта отличное
  • Наличие мебели да
  • Вид из окон во двор
  • Высота потолков в метрах 6 м.
  • Тип дома Монолитный
  • Количество раздельных санузлов 2
  • Количество грузовых лифтов 1
  • Количество пассажирских лифтов 1
  • Пентхаус нет
  • Есть терраса нет
  • Апартаменты да
  • Количество балконов 1
  • Жилой комплекс Рассвет Loft-Studio
  • Паркинг Подземная
  • Тип продажи Свободная продажа
  • Счетчики оплачиваются отдельно нет

Задать вопрос


Вас также может заинтересовать:

2-к.квартира, 52 м², 2/14 эт.
Москва, набережная Фрунзенская, д.40
Центральный, Хамовники
Фрунзенская Спортивная Лужники
61 500 000
  • Общая площадь:52 м²
  • Жилая площадь:33.8 м²
  • Площадь кухни:6 м²
  • Этаж:2
3-к.апартаменты, 103 м², 11/13 эт.
Москва, переулок 3-й Люсиновский, д.1, к.1
Центральный
Серпуховская
66 950 000
  • Общая площадь:103 м²
  • Жилая площадь:60 м²
  • Площадь кухни:20 м²
  • Этаж:11
3-к.квартира, 148 м², 3/14 эт.
Москва, улица Усачёва, д.11
Хамовники, Хамовники
Фрунзенская
78 490 000
  • Общая площадь:148 м²
  • Жилая площадь:80 м²
  • Площадь кухни:29 м²
  • Этаж:3

Мы используем файлы cookie, чтобы обеспечить вам наилучший доступ к нашему веб-сайту

Скопировано