Москва, ул Малая Пироговская, д 16
Пн-пт с 09:00 до 21:00, Сб-вс с 11:00 до 18:00

Аренда Офисное помещение 800 м² ID: J57722

Москва, Центральный, улица Лесная, д.43

Белорусская Замоскворецкая 9 мин.
Площадь 800 м²
Этаж 4 из 7
Сдача 1914 г.
4 000 000 / месяц
5 000 /м²
Ситкин Артем

Ситкин Артем
Специалист по недвижимости

+7(916)616-7663

+7(495)797-7074

sitkin@chaseestate.ru
QR
Ссылка на объект

Описание

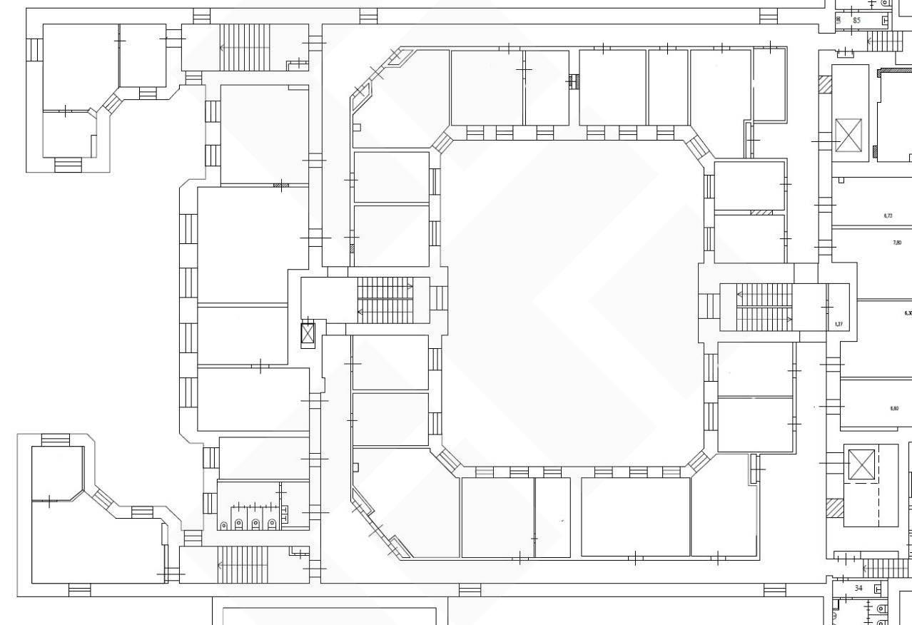
В аренду предлагается офисный блок в бизнес-центре класса B+ по адресу ул. Лесная, 43, общей площадью - 800 кв.м., 4 этаж, в 5 минутах ходьбы от м. Белорусская и Менделеевская.
Пространство занимает половину 4 этажа и идеально подойдёт для компании, ценящей престиж, комфорт и функциональность.
Блок с кабинетной планировкой, хорошим ремонтом и инженерными системами.
18 кабинетов и коридоры с санузлами
Вентиляция: приточно-вытяжная.
Кондиционирование: центральное.
Пожарная сигнализация: спринклерная система.
Охрана: круглосуточная охрана здания.
Здание бизнес-центра располагает круглосуточным доступом, развитой инфраструктурой — кафе, рестораны, салоны, спортивные клубы, отделения банков — всё в шаговой доступности.
Отличная транспортная доступность: 5 минут пешком от метро «Белорусская» и «Менделеевская», удобный выезд на улицу Лесная, Тверскую и Ленинградский проспект.
Парковка: наземная охраняемая на 25 мест стоимость 15 000 р./мес.
НДС включен
ФНС №07

Характеристики

  • Тип недвижимости Коммерческая
  • Населенный пункт Москва
  • Адм.округ Центральный
  • Адрес улица Лесная, д.43
  • Станция метро Белорусская ( 9 мин.)
  • Стоимость заМесяц
  • Общая площадь 800 м²
  • Вид объекта Офисное помещение
  • Этаж 4
  • Этажность дома 7
  • Электричество нет
  • Газ нет
  • Интернет нет
  • Водоснабжение нет
  • Ремонт Офисная отделка
  • Коммунальные услуги включены в стоимость да
  • Налоговая 7
  • Памятник нет
  • Паркинг Наземный охраняемый
  • Планировка Кабинетная
  • Год постройки 1914 г.

Задать вопрос


Вас также может заинтересовать:

4
Торговое помещение 1000 м²
Москва, улица Зорге, д.1, к.2
Северный, Северный
Полежаевская
3 000 000 / месяц
  • Вид объекта:Торговое помещение
  • Этаж:2
  • Этажность дома:2
13
Офисное помещение 451 м²
Москва, бульвар Гоголевский, д.11
Центральный
Кропоткинская
3 600 000 / месяц
  • Вид объекта:Офисное помещение
  • Этаж:2
  • Этажность дома:8
15
Офисное помещение 1070 м²
Москва, улица Отрадная, д.2Б
Северо-восточный, Отрадное
Отрадное
3 557 750 / месяц
  • Вид объекта:Офисное помещение
  • Этаж:6
  • Этажность дома:7

Мы используем файлы cookie, чтобы обеспечить вам наилучший доступ к нашему веб-сайту

Скопировано