Москва, ул Малая Пироговская, д 16
Пн-пт с 09:00 до 21:00, Сб-вс с 11:00 до 18:00

Аренда Офисное помещение 1903 м² ID: J59170

Москва, Центральный, Пресненский, проезд Шмитовский, д.37

Площадь 1903 м²
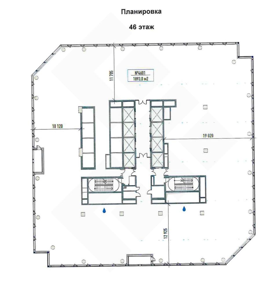
Этаж 46 из 61
13 130 700 / месяц
6 900 /м²
Ситкин Артем

Ситкин Артем
Специалист по недвижимости

+7(916)616-7663

+7(495)797-7074

sitkin@chaseestate.ru
QR
Ссылка на объект

Описание

В аренду предлагается офисное помещение, этаж целиком, общей площадью 1903,1 кв.м. в Бизнес-центре iCITY - это премиальный офисный проект класса А. В пяти минутах пешком от метро Шелепиха.
Новое помещение под чистовую отделку (Shell&Core). Свободная планировка. 46 этаж. Высота потолков 3,75 метра.
Коммунальные платежи оплачиваются отдельно. Охраняемый подземный паркинг.
Деловые инновационные небоскребы iCITY являются самым востребованным объектом класса А на столичном рынке коммерческой недвижимости, в том числе и благодаря своему уникальному расположению в кластере Москва-Сити. В непосредственной близости находятся три станции метро, а также МЦК и МЦД.
Цена указана с учетом НДС.

Характеристики

  • Тип недвижимости Коммерческая
  • Населенный пункт Москва
  • Адм.округ Центральный
  • Район Пресненский
  • Адрес проезд Шмитовский, д.37
  • Стоимость заМесяц
  • Общая площадь 1903 м²
  • Вид объекта Офисное помещение
  • Этаж 46
  • Этажность дома 61
  • Электричество нет
  • Газ нет
  • Интернет нет
  • Парковка Подземная
  • Водоснабжение нет
  • Ремонт Под чистовую отделку
  • Коммунальные услуги включены в стоимость нет
  • Памятник нет
  • Высота потолков 3.75 м.
  • Паркинг Подземный паркинг
  • Планировка Смешанная

Задать вопрос


Вас также может заинтересовать:

8
Помещение свободного назначения 5886 м²
Москва, шоссе Ленинградское, д.58, к.7
Северный, Северный
Водный стадион
12 252 500 / месяц
  • Вид объекта:Помещение свободного назначения
  • Этаж:1
  • Этажность дома:6
14
Здание 2841 м²
Москва, улица Вятская, д.27, к.5
Северный, Северный
Савеловская
9 943 500 / месяц
  • Вид объекта:Здание
  • Этаж:1
  • Этажность дома:3
14
Офисное помещение 1683 м²
Москва, проезд Огородный, д.16/1, к.5
Северо-восточный, Бутырский
Бутырская
10 602 900 / месяц
  • Вид объекта:Офисное помещение
  • Этаж:6
  • Этажность дома:12

Мы используем файлы cookie, чтобы обеспечить вам наилучший доступ к нашему веб-сайту

Скопировано