Москва, ул Малая Пироговская, д 16
Пн-пт с 09:00 до 21:00, Сб-вс с 11:00 до 18:00

Аренда Офисное помещение 164 м² ID: J62398

Москва, Центральный, Басманный, площадь Спартаковская, д.14, к.2

Бауманская Арбатско-Покровская 5 мин.
Площадь 164 м²
Этаж 3 из 3
395 000 / месяц
2 408 /м²
Трубелина Валентина

Трубелина Валентина
Специалист по недвижимости

+7(926)523-4267

+7(495)797-7074

trubelina@chaseestate.ru
QR
Ссылка на объект

Описание

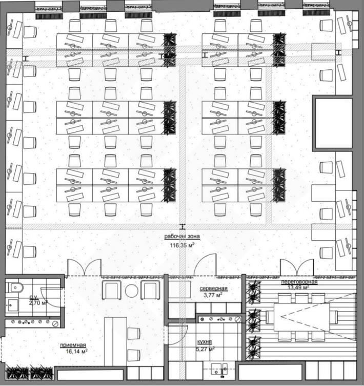
Предлагается в аренду офис площадью 163,7м в БЦ класса А в шаговой доступности от м.Бауманская. Бизнес-центр с уникальной архитектурой в викторианском стиле был построен девелопером STONE в рамках комплексного развития территории. В непосредственной близости располагаются апартаменты и другие центры, построенные девелопером, что обуславливает насыщенность района объектами социальной инфраструктуры. Комплекс построен в формате “двор без машин”: весь транспорт, в том числе гостевой, размещается на подземном паркинге бизнес-центра (до 30000р/м.м. или почасовая оплата). Доступ 24/7. Помещение правильной квадратной формы с потолками высотой 3,4 м. Электрическая мощность 20кВт. Хорошая освещенность обеспечивается большими французскими окнами с возможностью проветривания. Офис оборудован приточно-вытяжной вентиляцией и кондиционированием, что позволяет поддерживать приток свежего воздуха и климатический комфорт круглый год. Офис оборудован собственной кухней и санузлом. Отдельно выделен кабинет руководителя и рабочая зона в формате ‘open space’, что позволяет разместить до 50 рабочих мест. Комплекс оснащен самыми современными технологиями для комфортного пребывания: собственной подземной парковкой, лифтами, системами приточно-вытяжной вентиляции, видеонаблюдения, пожаротушения, охраны. Обслуживание комплекса: Имеется собственная служба технической эксплуатации, круглосуточная охрана, ежедневная уборка выполняется клининговой службой, а почтовое обслуживание - администратором комплекса. Эксплуатационные услуги оплачиваются отдельно и составляют около 34000р/мес. Коммунальные услуги-по счетчикам.
Подробнее

Характеристики

  • Тип недвижимости Коммерческая
  • Населенный пункт Москва
  • Адм.округ Центральный
  • Район Басманный
  • Адрес площадь Спартаковская, д.14, к.2
  • Станция метро Бауманская ( 5 мин.)
  • Стоимость заМесяц
  • Общая площадь 164 м²
  • Вид объекта Офисное помещение
  • Этаж 3
  • Этажность дома 3
  • Электричество нет
  • Газ нет
  • Интернет нет
  • Парковка Подземная
  • Водоснабжение нет
  • Ремонт Офисная отделка
  • Коммунальные услуги включены в стоимость нет
  • Памятник нет

Задать вопрос


Вас также может заинтересовать:

Помещение свободного назначения 140 м²
Москва, улица Поляны, д.5А, к.1
Юго-западный
Улица Скобелевская
350 000 / сутки
  • Вид объекта:Помещение свободного назначения
  • Этаж:1
  • Этажность дома:33
Помещение свободного назначения 500 м²
Москва, шоссе Загородное, д.1
Южный, Донской
Тульская
450 000 / месяц
  • Вид объекта:Помещение свободного назначения
  • Этаж:1
Помещение свободного назначения 160 м²
Москва, улица Ивана Франко, д.38, к.1
Западный, Кунцево
Молодежная
330 000 / месяц
  • Вид объекта:Помещение свободного назначения
  • Этаж:1
  • Этажность дома:1

Мы используем файлы cookie, чтобы обеспечить вам наилучший доступ к нашему веб-сайту

Скопировано