Москва, ул Малая Пироговская, д 16
Пн-пт с 09:00 до 21:00, Сб-вс с 11:00 до 18:00

жк издание ID: J62448

Москва, Центральный, Тверской, Москва, Юго-Восточный административный округ, Нижегородский район, ЖК Квартал Издание

Комнаты 2
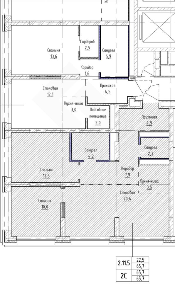
Площадь 65.7 м²
Жилая 45 м²
Кухня 12.5 м²
Этаж 11 из 15
Сдача 3 / 2027 г.
Алфимов Александр

Алфимов Александр
Специалист по недвижимости

+7(925)114-4011

alfimov@chaseestate.ru
QR
Ссылка на объект

Описание

эксклюзив
Предлагается великолепная квартира в лучшем проекте в локации. Квартира расположена в лучшем низко этажном корпусе в проекте . таких квартир больше нет.
Квартал «Издание» — это современный жилой комплекс комфорт-класса в Нижегородском районе Москвы, расположенный на Перовском шоссе. Проект разработан компанией «Брусника» и вдохновлён архитектурой Цюриха, сочетающей графичность, лёгкость и брутальность.
До станции метро «Нижегородская» — 15–20 минут пешком.
Рядом с комплексом — конечная остановка общественного наземного транспорта.
Для автолюбителей доступны Рязанский проспект, Перовская эстакада и Юго-Восточная хорда (ЮВХ). До ТТК на личном автомобиле можно добраться за 10 минут, до Кремля — за 20 минут.
На территории квартала предусмотрены:
Подземный паркинг на 290 машино-мест с зарядными станциями для электромобилей, автомойкой и пунктом подкачки колёс.
Коммерческие помещения на первых этажах: магазины, кафе, рестораны, медицинский и спортивный центры, детский центр с террасой, офисы.
Соседский центр на трёх этажах с ресепшн, прачечной, пространством для мастер-классов, кухней-гостиной, игровой комнатой, фитнес-залом, коворкингами и библиотекой.
Приватные дворы-сады с многоярусным озеленением, где растения подобраны по календарю цветения, чтобы радовать глаз круглый год.
На крыше стилобата разместятся зелёные террасы с частными патио, всесезонный общий сад, площадки для отдыха и детский уголок.
На территории бывшего завода «Станкоагрегат» появится ландшафтный парк площадью 2,4 га с прудом, беседками, павильоном, зонами для спорта, игр и отдыха, велодорожками и площадкой для выгула собак.
Подробнее

Характеристики

  • Тип недвижимости Новостройки
  • Населенный пункт Москва
  • Адм.округ Центральный
  • Район Тверской
  • Адрес Москва, Юго-Восточный административный округ, Нижегородский район, ЖК Квартал Издание
  • Название ЖК Квартал «Издание»
  • Идентификатор корпуса ЖК Дом 1
  • Срок сдачи год 2027 г.
  • Класс жилья Комфорт
  • Тип дома Кирпичный
  • Количество комнат 2
  • Общая площадь 65.7 м²
  • Жилая площадь 45 м²
  • Площадь кухни 12.5 м²
  • Этаж 11
  • Этажей в доме 15
  • Тип санузла Совмещенный
  • Тип балкона нет
  • Отделка Черновая
  • Тип сделки переуступка прав
  • Есть терраса нет
  • Пентхаус нет
  • Апартаменты нет
  • Вид из окон во двор и на улицу
  • Количество совмещенных санузлов 2
  • Высота потолков в метрах 3 м.
  • Стадия строительства строится
  • Срок сдачи квартал 3
  • Тип лица CPL Физическое лицо
  • Фамилия CPL Хамидулин
  • Имя CPL Эльдар
  • Отчество CPL Сяидович
  • Номер регистрации ДДУ в Росреестре 77:04:00002001:9729-77/060/2024-583

Застройщик:

ООО «Брусника»

Задать вопрос


Вас также может заинтересовать:

18
Квартира в ЦАО
Москва, проезд Шмитовский, д.39, к.5
Пресненский, Пресненский
Шелепиха Шелепиха
28 500 000
  • Срок сдачи год:2024 г.
  • Класс жилья:Бизнес
  • Тип дома:Монолит-кирпич
  • Тип сделки:переуступка прав
6
ЖК «Остров» 3 корпус (Квартал 5)
Москва, улица Нижние Мнёвники, д.1
Северо-западный
Терехово Мнёвники
24 700 000
  • Срок сдачи год:2025 г.
  • Класс жилья:Бизнес
  • Тип сделки:переуступка прав
  • Стадия строительства:строится
3
ЖК «Voxhall (Воксхолл)»
Москва, улица Летниковская
Центральный, Замоскворечье
Павелецкая
22 000 000
  • Срок сдачи год:2025 г.
  • Класс жилья:Бизнес
  • Тип дома:Монолитный
  • Тип сделки:переуступка прав

Мы используем файлы cookie, чтобы обеспечить вам наилучший доступ к нашему веб-сайту

Скопировано